4-room flat new, first floor, Diklo - Puntamika, Zadar

€ 486,765
4
108 m²
2
1
Terrace
Cellar

Note

Listing updated on 12/16/2025
Description

reference: EK-1428891

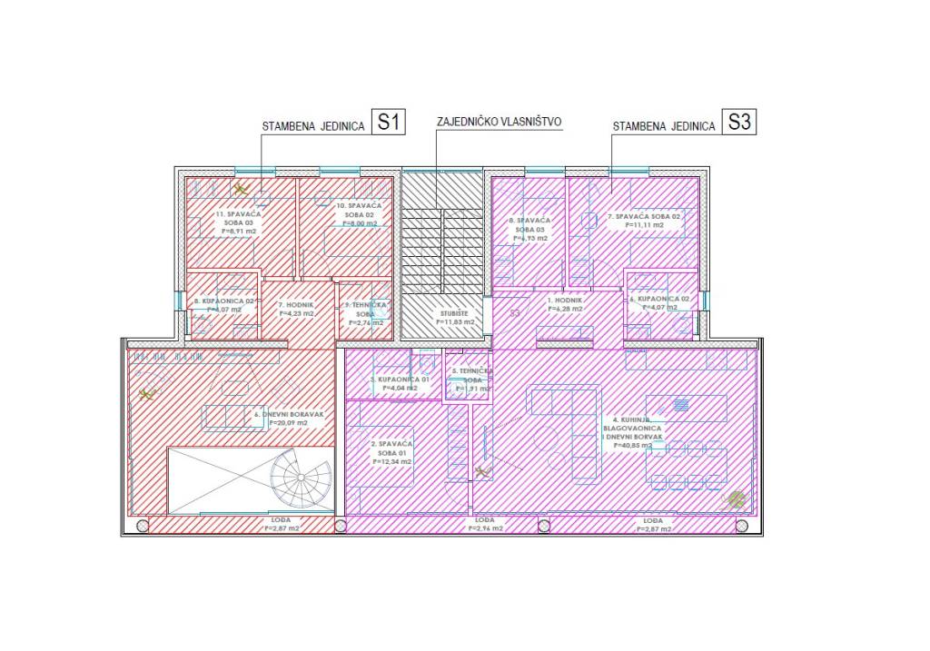
Zadar, Diklo , na prodaju je luksuzan trosoban stan na 1. katu zgrade. Na mirnoj lokacijiu Diklu u izgradnji su 3 luksuzne vile sa pogledom na more i otoke, te plantaže maslina. Dvije zgrade sa po 4 stambene jedinice i jedna sa tri stambene jedinice. Svi stanovi su projektirani sa velikim staklenim stijenama, sa mnogo svijetla i pogledom na more. Uz pažljivo projektirane stambene jedinice i autorsku arhitekturu projekta s potisom sve stambene jedinice biti će bogato opremljene. Ugrađivat će se: - najkvalitetnija aluminijska stolarija na tržištu - harmo aluminijska sjenila (mogućnost potpune zaštite od sunca) - podno grijanje na principu dizalice topline u svim prostorijama - kondicioniranje zraka uz pomoć dizalice topline (grijanje i hlađenje, multi split sustav) -vrhunska talijanska keramika - sanitarije renomiranih svjetskih proizvođača - videoparlafon - sobna vrata sa skrivenim okovima - protuprovalna ulazna vrata. Na prvom katu zgrade na prodaju je trosoban stan oznake S3 . Sastoji se od hodnika, 3 spavaće, sobe, dvije kupaonice, tehničke sobe, kuhinje i blagavaone s dnevnim boravkom, te lođe, ukupno stambeno 91,90m2. Pripada mu spremište površine 13,27 m2, te jedno vanjsko i drugo garažno parkirno mjesto. Ukupno etažna jedinica stana oznake S3 će imati 108,17 m2. Završna obrada interijera uključuje vrhunske materijale – talijansku keramiku, višeslojni hrastov parket, alu stolariju, sanitarije renomiranih proizvođača kao što su Laufen i Hansgrohe, te dizajnerska unutarnja vrata. Ova nekretnina pruža idealan dom za obitelj no i mogućnost korištenja za nekretninu za odmor ili iznajmljivanja u turizmu. Investitor je firma te kupac ne plaća porez na promet nekretnina. Predviđeno useljenje i završetak je do kraja 2026. godine. Više informacija na upit.
If you want to know more, you can talk to Ivana Pezo Milković.
Features
Type
Apartment | Full ownership | Luxury property
Contract
Sale
Floor
1
Building floors
2
Surface
108 m²
Rooms
4
Bedrooms
3
Bathrooms
2
Furnished
No
Terrace
Yes
Garage, car parking
1 in garage/box, 2 parking space
Heating
Independent, floor heating, powered by heat pump
Air conditioning
Independent, cold/hot
Distance from the sea
500 m
Other features
  • External exposure
  • Security door
  • Utility/Storage room
  • Video entryphone
Surface detail

Residential

Floor
1
Surface
108.0 m²
Coefficient
100%
Surface type
Main
Commercial area
108.0 m²
Price information
Price
€ 486,765
Price per m²
4,507 €/m²
Energy efficiency

Energy consumption

≥ 250 kWh/m² yearA+

Floorplan
Screenshot_3
Screenshot_8
Screenshot_6
Discover every corner of the property
+4
Advertiser
agent male

Ivana Pezo Milković

agency card
Additional options

Contact the advertiser

Or
agent male

Ivana Pezo Milković