4-room flat new, second floor, Diklo - Puntamika, Zadar

€ 762,615
4
170 m²
2
2
Balcony
Terrace
Cellar

Note

Listing updated on 12/16/2025
Description

reference: EK-1428993

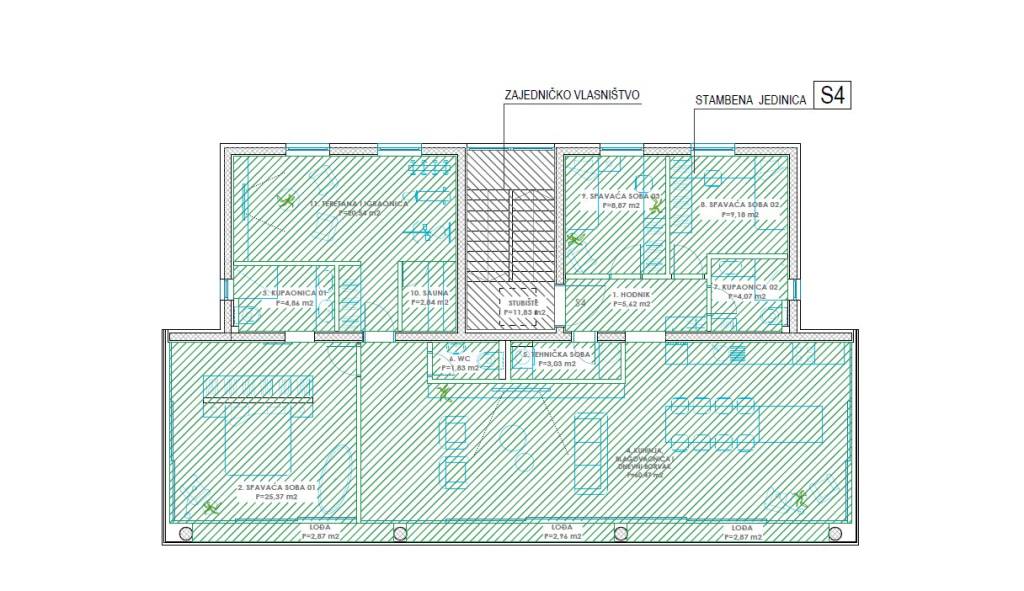
Zadar, Diklo , na prodaju je luksuzan penthouse na 2. katu zgrade. Na mirnoj lokacijiu Diklu u izgradnji su 3 luksuzne vile sa pogledom na more i otoke, te plantaže maslina. Dvije zgrade sa po 4 stambene jedinice i jedna sa tri stambene jedinice. Svi stanovi su projektirani sa velikim staklenim stijenama, sa mnogo svijetla i pogledom na more. Uz pažljivo projektirane stambene jedinice i autorsku arhitekturu projekta s potisom sve stambene jedinice biti će bogato opremljene. Ugrađivat će se: - najkvalitetnija aluminijska stolarija na tržištu - harmo aluminijska sjenila (mogućnost potpune zaštite od sunca) - podno grijanje na principu dizalice topline u svim prostorijama - kondicioniranje zraka uz pomoć dizalice topline (grijanje i hlađenje, multi split sustav) -vrhunska talijanska keramika - sanitarije renomiranih svjetskih proizvođača - videoparlafon - sobna vrata sa skrivenim okovima - protuprovalna ulazna vrata. Na prodaju je trosoban penthouse oznake S4 koji se proteže kroz cijelu etažu drugog kata zgrade. Sastoji se od hodnika, 3 spavaće, sobe, dvije kupaonice, dodatnog wc-a,tehničke sobe, kuhinje i blagavaone s dnevnim boravkom, saune, teretane te tri lođe, ukupno stambeno 153,20 m2. Pripada mu spremište površine 13,27 m2, te jedno vanjsko i drugo garažno parkirno mjesto. Ukupno etažna jedinica stana oznake S4 će imati 169,47 m2. Završna obrada interijera uključuje vrhunske materijale – talijansku keramiku, višeslojni hrastov parket, alu stolariju, sanitarije renomiranih proizvođača kao što su Laufen i Hansgrohe, te dizajnerska unutarnja vrata. Ova nekretnina pruža idealan dom za obitelj no i mogućnost korištenja za nekretninu za odmor ili iznajmljivanja u turizmu. Investitor je firma te kupac ne plaća porez na promet nekretnina. Predviđeno useljenje i završetak je do kraja 2026. godine. Više informacija na upit.
If you want to know more, you can talk to Ivana Pezo Milković.
Features
Type
Penthouse | Full ownership | Luxury property
Contract
Sale
Floor
2
Building floors
2
Surface
170 m²
Rooms
4
Bedrooms
3
Bathrooms
2
Furnished
No
Balcony
Yes
Terrace
Yes
Garage, car parking
1 in garage/box, 2 parking space
Heating
Independent, floor heating, powered by heat pump
Air conditioning
Independent, cold/hot
Distance from the sea
500 m
Other features
  • External exposure
  • Security door
  • Utility/Storage room
  • Window frames in triple glass / metal
  • Video entryphone
Surface detail

Residential

Floor
2
Surface
170.0 m²
Coefficient
100%
Surface type
Main
Commercial area
170.0 m²
Price information
Price
€ 762,615
Price per m²
4,486 €/m²
Energy efficiency

Energy consumption

≥ 250 kWh/m² yearA+

Floorplan
Screenshot_6
Screenshot_5
Screenshot_9
Screenshot_4
Discover every corner of the property
+3
Advertiser
agent male

Ivana Pezo Milković

agency card
Additional options

Contact the advertiser

Or
agent male

Ivana Pezo Milković