map icon

Apartment 121 m², Rovinj

Rovinj
€ 768,000
121 m²
3

Note

Listing updated on 12/22/2025
Description

This description has been translated automatically and may not be accurate

reference: 2053

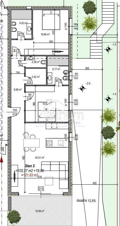
Luxury apartment in Rovinj


Istria, Rovinj In the very center of the city, in an attractive location near all facilities and in the immediate vicinity of the most beautiful beaches, this wonderful luxury apartment under construction is for sale, located on the ground floor of a modern building. The apartment consists of 121.83 m2, from which there is access to a garden of 40 m. It has two bedrooms, each with its own bathroom and dressing room. The kitchen, dining room and living room face the daylight, which gives the apartment additional size and spaciousness. The apartment also has a storage room and a parking space in the garage. It is sold unfurnished except for the bathrooms and floors, which will be completely decorated. The building in which the apartment is located is being built with the most modern technology and the most modern means. Feel free to contact us for more details. Platinum Real Estate Istria Mobile: +385959003151 E-mail: info@platinumistra.com
Features
Type
Apartment
Contract
Sale
Building floors
2
Surface
121 m²
Bathrooms
3
Garage, car parking
1 in garage/box, 1 parking space
Price information
Price
€ 768,000
Price per m²
6,347 €/m²
Energy efficiency
  • Energy certification

    Not classifiable
Discover every corner of the property
+6
Additional options

Contact the advertiser

Or