map icon

Apartment 58 m², Pula

Pula
€ 164,000
58 m²
1

Note

Listing updated on 01/28/2026
Description

This description has been translated automatically and may not be accurate

reference: 2698

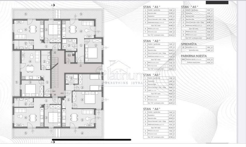
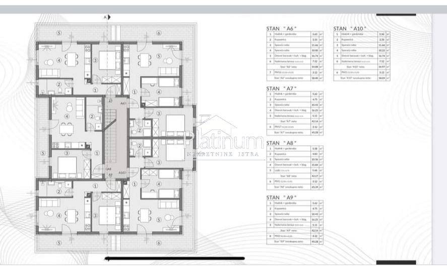
Istria, Šikići apartments in new construction


We offer apartments under construction in four buildings. Three buildings have fifteen apartments each, while one building has thirteen apartments. The first building consists of a ground floor and two floors, and there are five apartments on each floor. One of the apartments is located on the first floor and consists of a hallway, wardrobe, bathroom, two bedrooms, living room with kitchen and dining room, and a covered terrace. The possibility of buying on credit The buyer does not pay real estate sales tax The dynamics of payment is according to the phases of the project and in agreement with the investor. Construction will begin in the spring of 2024, and completion is planned for December 2025. Info on the number 00385 91 924 9486 00385 95 198 7708
Features
Type
Apartment
Contract
Sale
Surface
58 m²
Bathrooms
1
Garage, car parking
1 parking space
Price information
Price
€ 164,000
Price per m²
2,828 €/m²
Energy efficiency
  • Energy certification

    Not classifiable
Discover every corner of the property
+8
Additional options

Contact the advertiser

Or