map icon

Apartment 104 m², Rovinj

Rovinj
€ 570,000
104 m²
1

Note

Listing updated on 12/22/2025
Description

This description has been translated automatically and may not be accurate

reference: 3086

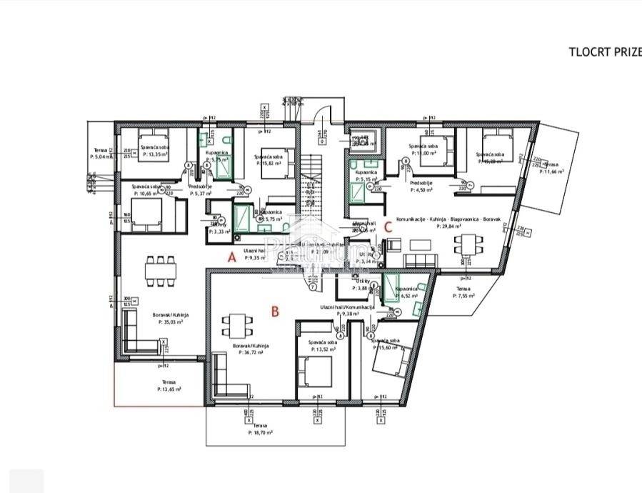
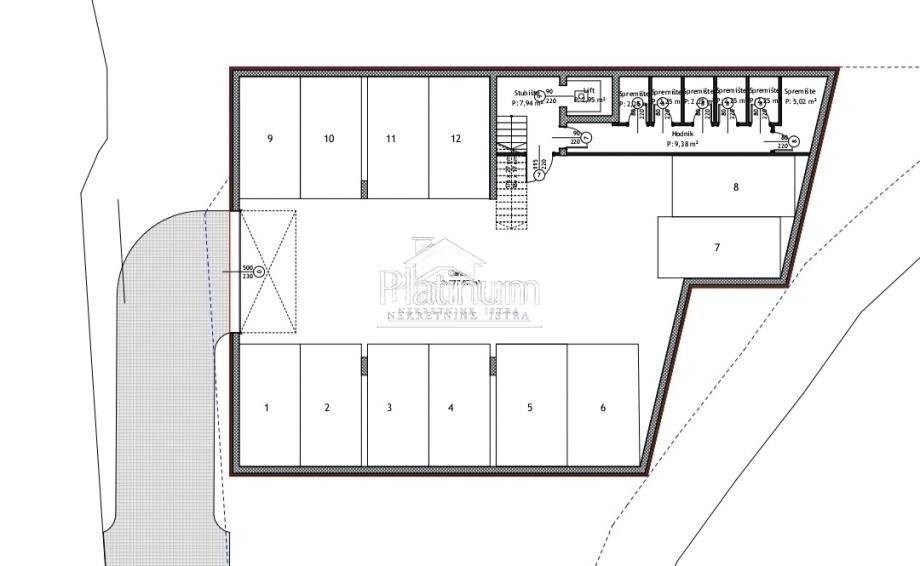
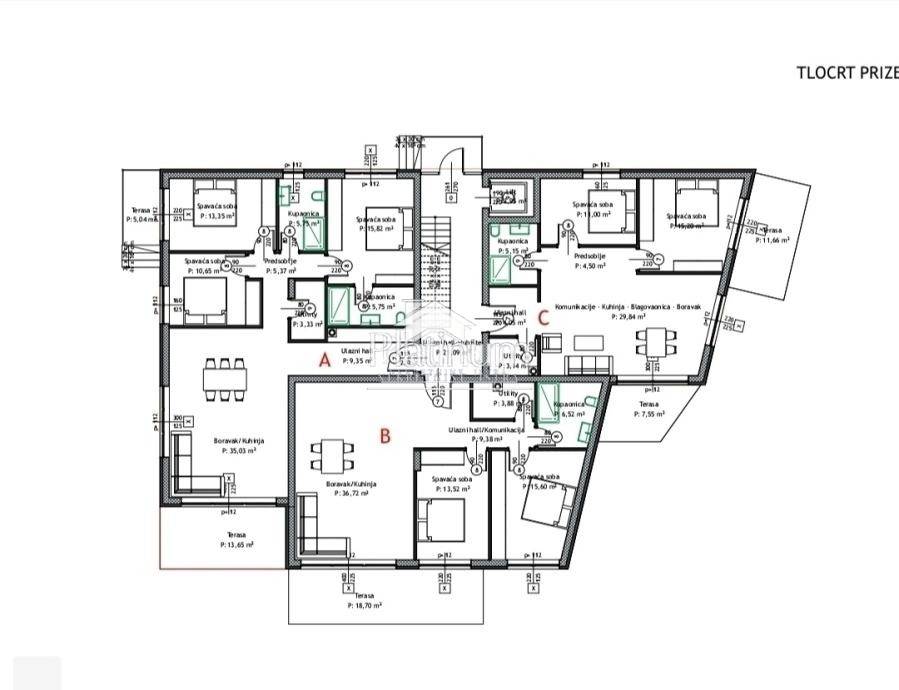
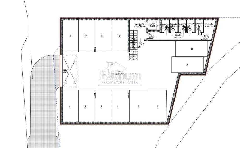
Istra, Rovinj apartment under construction on the ground floor with garden


Apartments under construction on the ground floor for sale in a beautiful romantic tourist town. Currently in the stage of receiving reservations. The apartment is located 300 m from the sea and consists of: Entrance hall Living room with kitchen and dining room Utilities Entrance hall Two bedrooms Bathrooms Terraces Storage in the basement Two parking spaces in the garage with elevator And the associated garden according to the project Air conditioning, underfloor heating with city gas, ceramic-parquet floors, burglar-proof entrance doors, complete internal walls - Knauf, aluminum carpentry with electric blinds and mosquito nets, video intercom, facade - stone wool (10 cm), glass balcony railings, elevator from garage up to the first floor, The planned completion of the works is expected in July 2026 Info on 00385 91 924 9486
Features
Type
Apartment
Contract
Sale
Surface
104 m²
Bathrooms
1
Garage, car parking
1 in garage/box
Price information
Price
€ 570,000
Price per m²
5,481 €/m²
Energy efficiency
  • Energy certification

    Not classifiable
Discover every corner of the property
+5
Additional options

Contact the advertiser

Or