map icon

Apartment 163 m², Rovinj

Rovinj
€ 880,000
163 m²
2

Note

Listing updated on 12/22/2025
Description

This description has been translated automatically and may not be accurate

reference: 3089

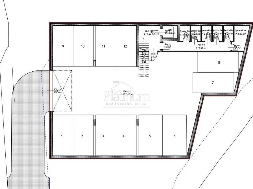
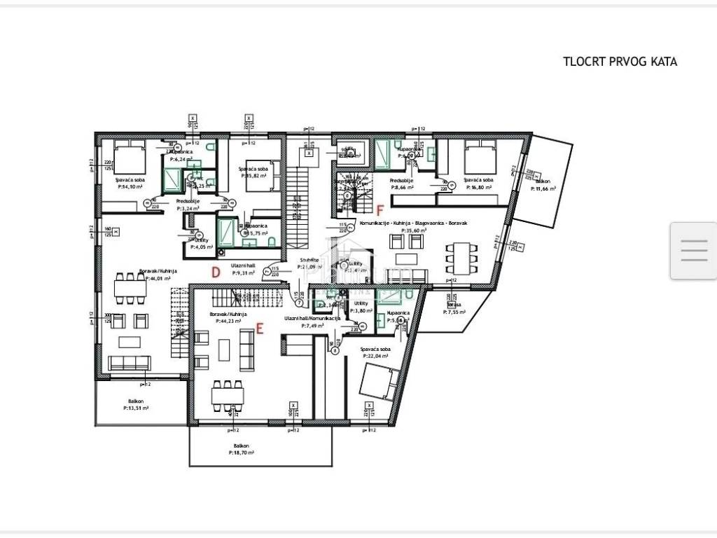
Istra, Rovinj apartment under construction in a prime position


Apartments for sale on the ground floor in a beautiful romantic tourist castle. Currently in the phase of receiving reservations. The apartment is located 300 m from the sea and consists of: First floor and attic Floor: living room with kitchen and dining room, pantry, entrance hall, bedroom, bathroom, storage room, two balconies Attic: Three bedrooms, bathroom, hallway, terrace, hallway Store in the basement Two parking spaces in the garage with elevator Air conditioning, gas underfloor heating, ceramic parquet floors, burglar-proof entrance door, complete interior walls - Knauf, aluminum carpentry with electric shutters and mosquito nets, video intercom, stone wool facade (10 cm), glass balcony railings, elevator from garage to first floor, The planned completion of the works is expected in July 2026 Info on 00385 91 924 9486
Features
Type
Apartment
Contract
Sale
Surface
163 m²
Bathrooms
2
Garage, car parking
1 in garage/box, 1 parking space
Price information
Price
€ 880,000
Price per m²
5,399 €/m²
Energy efficiency
  • Energy certification

    Not classifiable
Discover every corner of the property
+5
Additional options

Contact the advertiser

Or