

Note
This description has been translated automatically by Google Translate and may not be accurate
reference: 7180
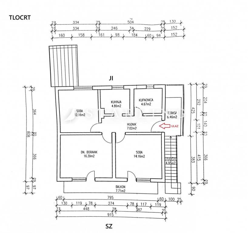
Flat Peščenica, Peščenica - Žitnjak, 60m2
Year of construction
1990Heating
Central, floor heatingEnergy certification
Not classifiable