Single family villa 289 m², new, Tar-Vabriga

Price on application
5+
289 m²
3+
No
Balcony
Terrace

Note

Listing updated on 12/23/2025
Description

This description has been translated automatically and may not be accurate

reference: EK-1660767

New-Build Villa with Pool – Tar

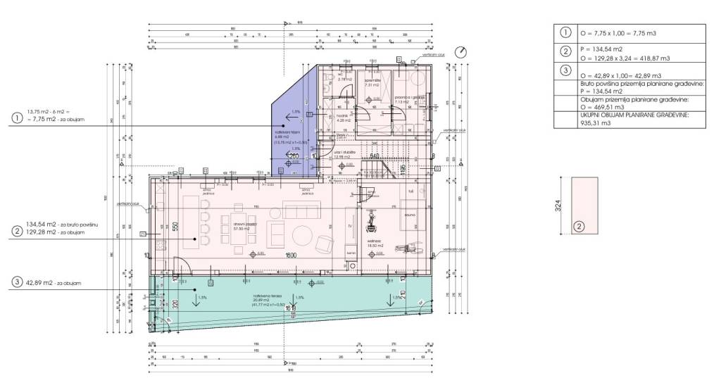
Located in a quiet area of Tar, this contemporary detached villa with a swimming pool is part of a well-designed modern residential development. The property is designed to comfortably accommodate up to eight persons, with clearly separated living, private, and outdoor zones. The ground floor features an open-plan living area combining the lounge, kitchen, and dining room, complemented by a wellness area, technical and service rooms, and a covered terrace. The first floor is arranged as the private sleeping area with four comfortable bedrooms, each with its own en-suite bathroom, along with additional covered and open terraces, while the top floor is conceived as a spacious terrace intended for relaxation, featuring a jacuzzi. The outdoor area includes a sunken swimming pool with a gross surface area of 49 m², a sunbathing area, and parking space. The villa has been designed in accordance with valid spatial-planning regulations and is equipped with modern technical systems, including underfloor heating, a heat pump, a VRF heating and cooling system, and full communal infrastructure connections.

L’Adria Estate – Licensed Real Estate Agency
In accordance with brokerage terms, the agency commission for buyers is 3% + VAT of the agreed purchase price.
Features
Type
Single family villa | Full ownership | Luxury property
Contract
Sale
Floor
Ground floor, from 1 to 2
Building floors
3
Lift
No
Surface
289 m²
Rooms
5+
Bedrooms
4
Bathrooms
3+
Balcony
Yes
Terrace
Yes
Heating
Independent, floor heating, powered by heat pump
Air conditioning
Independent, cold/hot
Distance from the sea
2,000 m
Other features
  • Double exposure
  • Pool
Surface detail

Residential

Floor
Ground floor
Surface
134.5 m²
Coefficient
100%
Surface type
Main
Commercial area
134.5 m²

Residential

Floor
1
Surface
135.4 m²
Coefficient
100%
Surface type
Main
Commercial area
135.4 m²

Residential

Floor
2
Surface
18.9 m²
Coefficient
100%
Surface type
Main
Commercial area
18.9 m²
Price information
Price
Price on application
Energy efficiency

Energy consumption

≥ 250 kWh/m² yearA+

Floorplan
Screenshot (14)
Screenshot (16)
Screenshot (15)
Screenshot (17)
Discover every corner of the property
+4
Additional options

Contact the advertiser