Apartment new, semi-basement, Kostrena

€ 884,100
5
210 m²
2
1
Yes
Balcony
Terrace

Note

Listing updated on 01/16/2026
Description

This description has been translated automatically and may not be accurate

reference: 44548

RIJEKA, KOSTRENA - exclusive duplex apartment 210.50 m2 new building with beautiful sea view and swimming pool + garden 350.93 m2 - S2-B

RIJEKA, KOSTRENA - exclusive duplex apartment 210.50 m2 new building with a beautiful view of the sea and swimming pool + garden 350.93 m2 - S2-B

We offer a property that offers you modern design and elegance, comfort and top-notch equipment, and is located in a beautiful quiet location near public transport, schools, kindergartens, shopping centers and a ten-minute drive from Rijeka.
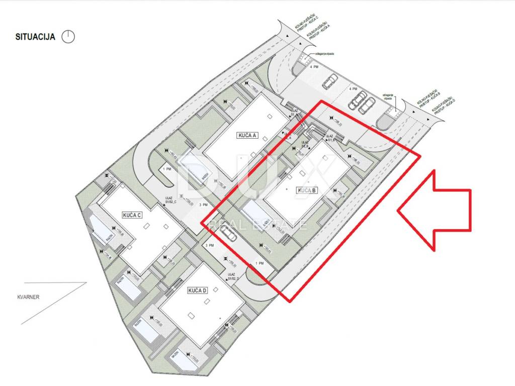
The complex of 4 residential buildings with a total of 8 apartments is located north of the Adriatic highway in the area of "Zelena Kostrena" from where there is a beautiful view of
the entire Kvarner.
In the immediate vicinity there are 10 kilometers of well-maintained hiking, cycling and fitness trails that pass through the highest parts of Kostrena from the Solin peak to the Sopalj peak.
Access to the houses is arranged from the upper road where the arrangement and expansion of the existing road is planned.
Each house has four outdoor parking spaces, or two parking spaces per residential unit.
Each house consists of two apartments.
The apartments on the upper two plots are located one above the other, while the apartments on the lower two plots are located next to each other.
Each apartment has a part of the garden.

HOUSE B apartment S2 - B:
LIVING SPACES:
- living room / dining room 40.92
- kitchen 7.79
- pantry 3.26
- study 9.17
- room 19.20
- bathroom 6.59
- entrance 6.63
- hallway 4.04
- toilet 3.01
- staircase 7.52
- hallway 5.46
- bathroom 4.38
- bathroom 4.38
- room 14.36
- room 18.35
- room 14.60
- laundry room 4.87
- storage room 5.77
- terrace 25.74
- covered entrance 4.46
TOTAL LIVING SPACES: 210.50 m

ASSOCIATED SPACES:
- storage 6.48
- greenery 3.40
- entrance hall 16.27
- greenery 17.48
- greenery 3.59
- greenery 37.24
- outdoor terrace 53.85
- swimming pool 27.30
- greenery 83.19
- greenery 30.59
- greenery 8.95
- outdoor terrace 14.03
- greenery 11.37
- greenery 6.98
- parking space 3 15.01
- parking space 4 15.20
ASSOCIATED SPACES TOTAL: 350.93 m

APARTMENT S2-B TOTAL: 561.43 m

This luxury apartment is designed for maximum comfort.

EQUIPMENT:
The house in which the apartment is located is well-built and luxuriously equipped, all installed materials, floor and wall coverings are of the highest standards.
- 10cm thick facade insulation
- underfloor heating - heat pumps
- top-quality aluminum joinery.

The apartment has its own garden and 2 parking spaces.

PRICE:
The listed price refers to a completely finished turnkey property, without furniture.
The price includes VAT, the buyer is exempt from paying real estate tax.
In the case of purchasing from a company registered in Croatia, a full VAT refund is possible after the sale.

Clean and tidy property.
Certainly a beautiful property for a luxurious family life, but also suitable as an investment in the form of elite tourism.

A UNIQUE PROPERTY DEFINITELY WORTH YOUR ATTENTION IN A GREAT LOCATION!!!

KOSTRENA
Kostrena is an old, popular seaside town, first mentioned in the early 15th century. It gained its first municipal independence in 1874, but it held it for a very short time, only two years. It is divided into two parts, St. Lucia and St. Barbara, according to the names of two churches that exist in its area.
Kostrena is located in the immediate vicinity of the city of Rijeka, framed by the Martinšćica Bay and the Bakar Bay. The Kostrena peninsula is about 10 kilometers long and gently slopes towards the coast. Along its entire length, there are beautiful beaches that are visited by thousands of swimmers during the summer. The most famous and most visited are those in the Žurkovo Bay, then Smokvinovo, Svežanj, Spužvina, Podražica, Nova voda and Perilo.
Kostrena consists of about twenty settlements, many of which were named after families, and today the most populated are Vrh Martinšćice, Glavani, Sv. Lucija, Rožmanići, Doričići and Paveki.
The characteristic karst area with Mediterranean plants and the famous Kostrena gromača, and the mild climate that sometimes gives way to strong gusts of bora, are the characteristics of this region.

Dear clients, the agency commission is charged in accordance with the General Terms and Conditions:
www.dux-nekretnine.hr/opci-uvjeti-poslovanja

Dear potential buyers, tenants and lessees,
viewing the property that interests you and in which you have an interest is possible only and exclusively with the signing of a Real Estate Brokerage Agreement, for the purpose of protecting the property owner from visits by unregistered persons, and in accordance with the Data Protection Act and the Real Estate Brokerage Act.
When viewing each property, the potential buyer/tenant/lessee is required to fill out and sign the Real Estate Brokerage Agreement, which states the following:
- basic information about the potential buyer/tenant/lessee
- basic information about the agency
- amount of agency commission
The agency commission for the buyer is 3% (+25% VAT) of the total agreed purchase price.
The agency commission for the lessee is one monthly rent (+ 25% VAT).

ID CODE: 44548

Patrik Hrštić
Agent s licencom
Mob: +385 91 270 3979
Tel: +385 91 480 8808
E-mail: patrik@dux-nekretnine.hr
www.dux-opatija.com

Rene Nemarnik
Agent s licencom
Mob: +385 91 737 5328
Tel: +385 91 480 8808
E-mail: rene@dux-nekretnine.hr
www.dux-nekretnine.hr
If you want to know more, you can talk to Patrik Hrštić.
Features
Type
Apartment
Contract
Sale
Floor
1
Lift
Yes
Surface
210 m² | commercial 560 m²
Rooms
5
Bedrooms
4
Bathrooms
2
Balcony
Yes
Terrace
Yes
Air conditioning
Independent, cold/hot
Surface detail

Residential

Floor
1
Surface
210.0 m²
Coefficient
100%
Surface type
Main
Commercial area
210.0 m²

Land

Floor
Ground floor
Surface
350.0 m²
Coefficient
100%
Surface type
Accessory
Commercial area
350.0 m²
Price information
Price
€ 884,100
Price per m²
1,579 €/m²
Energy efficiency

Energy consumption

A+

Discover every corner of the property
+11
Advertiser
agency card
Additional options

Contact the advertiser

Or