Apartment Glavani, Kostrena, Kostrena

€ 850,000
5
209 m²
2
No
Terrace

Note

Listing updated on 04/18/2026
Description

This description has been translated automatically and may not be accurate

reference: 896

Kostrena, four-bedroom apartment with garden and swimming pool

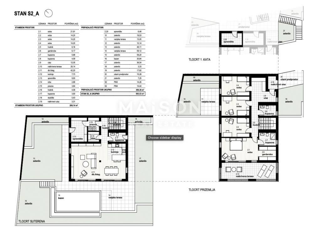
Kostrena Glavani – Apartment S2-A, 209.14 m²

In the peaceful, greenery-surrounded neighborhood of Glavani in Kostrena lies Apartment S2-A – part of an exclusive project that combines contemporary architecture, top-quality construction, and the comfort of family living. The spacious 209.14 m² interior offers a perfect balance of functionality and elegance, while large glass surfaces open up views of the Kvarner Bay and the islands, creating an unparalleled everyday living experience.
The apartment is designed as a four-bedroom unit, featuring a luxurious open-plan living room, dining area, and kitchen of 49.93 m². In addition to three modern bathrooms, there is a utility room, and the layout has been carefully planned to ensure abundant natural light and seamless transitions between interior and exterior spaces.
The property also includes 359.39 m² of landscaped garden with a private pool of 30.84 m², giving the entire space the feel of a private oasis. Two private parking spaces within the same area further enhance practicality and comfort.
The high construction standard is evident in every detail: underfloor heating via heat pump, air conditioning, triple-layer parquet flooring, premium-grade ceramics, aluminum joinery with impressive glass walls, and secure anti-burglary and fire-resistant doors. Every element has been selected to ensure long-lasting value and complete comfort.
A reliable and experienced developer, with numerous successfully completed projects, guarantees investment security and a quality of life befitting such a prime location.

For private viewings or more information, feel free to contact us.

Maison - because a home is not just a place, but a way of life.

ID CODE: 896

Dario Oriović
CEO
Mob: +385 91 474 0205
Tel: +385 51 640 777
E-mail: dario@maison-nekretnine.com
www.maison-nekretnine.com
Features
Type
Apartment
Contract
Sale
Lift
No
Surface
209 m²
Rooms
5
Bedrooms
4
Bathrooms
2
Balcony
No
Terrace
Yes
Garage, car parking
2 parking space
Heating
Independent, air heating
Price information
Price
€ 850,000
Price per m²
4,067 €/m²
Energy efficiency
  • Year of construction

    2026
  • Heating

    Independent, air heating
  • Energy certification

    Not classifiable
Floorplan
Discover every corner of the property
+2
Additional options

Contact the advertiser

Or