1/8


Apartment Vodice, Vodice
€ 750,000
5
217 m²
3
2
No
Balcony
Terrace
Listing updated on 03/17/2026
Description
reference: SVD-004
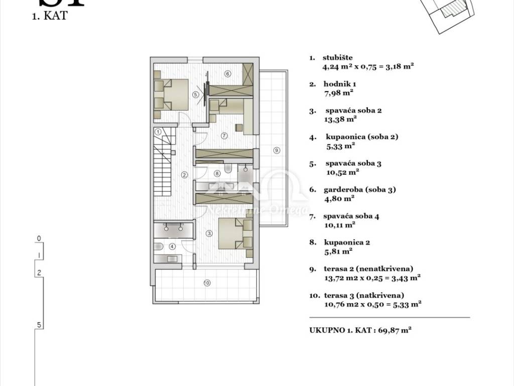
Flat Vodice, 217,90m2
ID CODE: SVD-004
Paolo Miškić
Viši savjetnik
Mob: +385 (0)99 210 2671
Tel: +385 (0)99 210 2671
E-mail: paolo@nekretnine-omega.hr
www.nekretnine-omega.hr
Features
- Type
- Apartment
- Contract
- Sale
- Floor
- 2 floor
- Lift
- No
- Surface
- 217 m²
- Rooms
- 5
- Bedrooms
- 4
- Bathrooms
- 3
- Balcony
- Yes
- Terrace
- Yes
- Garage, car parking
- 1 parking space
- Heating
- Independent, air heating
- Air conditioning
- Independent, cold/hot
Price information
- Price
- € 750,000
- Price per m²
- 3,456 €/m²
Energy efficiency
Discover every corner of the property
Additional options