Building land for Sale

€ 110,000
813 m²

Note

Listing updated on 03/19/2026
Description

This description has been translated automatically and may not be accurate

reference: T-4335-004

Starigrad - building plot with a building permit 100m away from sea! 110000€

Rivijera Paklenica

A building plot of 813 m2 with a building permit and a project!
About 100 - 150 m away from sea and the beach!
Asphalted road access.
The plot is on a hill above the sea and offers a beautiful panoramic view of the sunset over the Pag Canal.

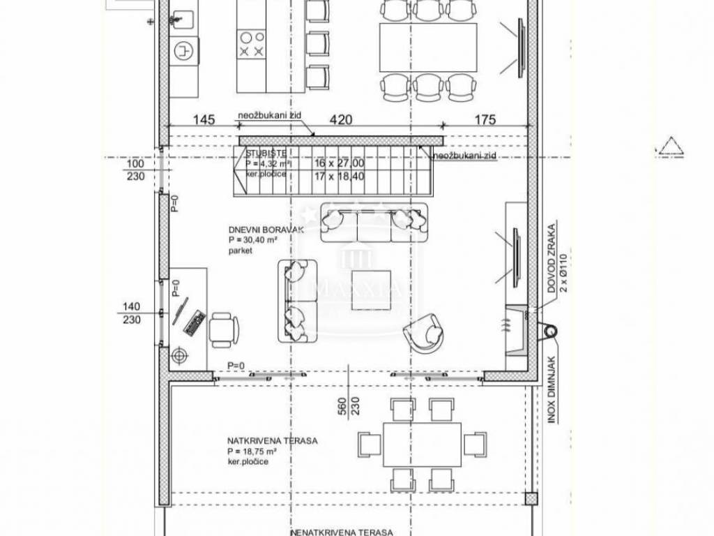
A planned luxury family house that would consist of a ground floor and an upper floor.
Ground floor:
- hallway with anteroom and wardrobe,
- 2 large bedrooms with access to the terrace,
- bathroom with toilet,
- guest toilet,
- covered terrace,
- uncovered terrace,
- storage room/laundry room.

Floor:
- large open space kitchen and dining room,
- large living room with access to the terrace,
- spacious covered terrace,
- spacious uncovered terrace.

Very peaceful surroundings.
Untouched nature with Paklenica National Park and Velebit in the immediate vicinity.
The construction of a swimming pool is possible!

Floor plans provided in the ad.

All additional information per request!

TOUR OF THE PROPERTY INSURED 7/7 DAYS
BY PRIOR ARRANGEMENT!

ID CODE: T-4335-004

MAXXIA Real Estate
Suradnik u prodaji
Mob: +385 91 606 0516
E-mail: info@maxxia.hr
www.maxxiarealestate.com
Features
Contract
Sale
Type
Building land
Surface
813 m²
Price information
Price
€ 110,000
Price per m²
135 €/m²
Discover every corner of the property
+4
Additional options

Contact the advertiser

Or