Single-family detached house Poreč, Luka, Poreč

€ 830,000
5+
205 m²
3+
No
Terrace

Note

Listing updated on 01/22/2026
Description

This description has been translated automatically and may not be accurate

reference: 8734633

Luxurious modern villa with pool in Poreč, 8 km from the sea

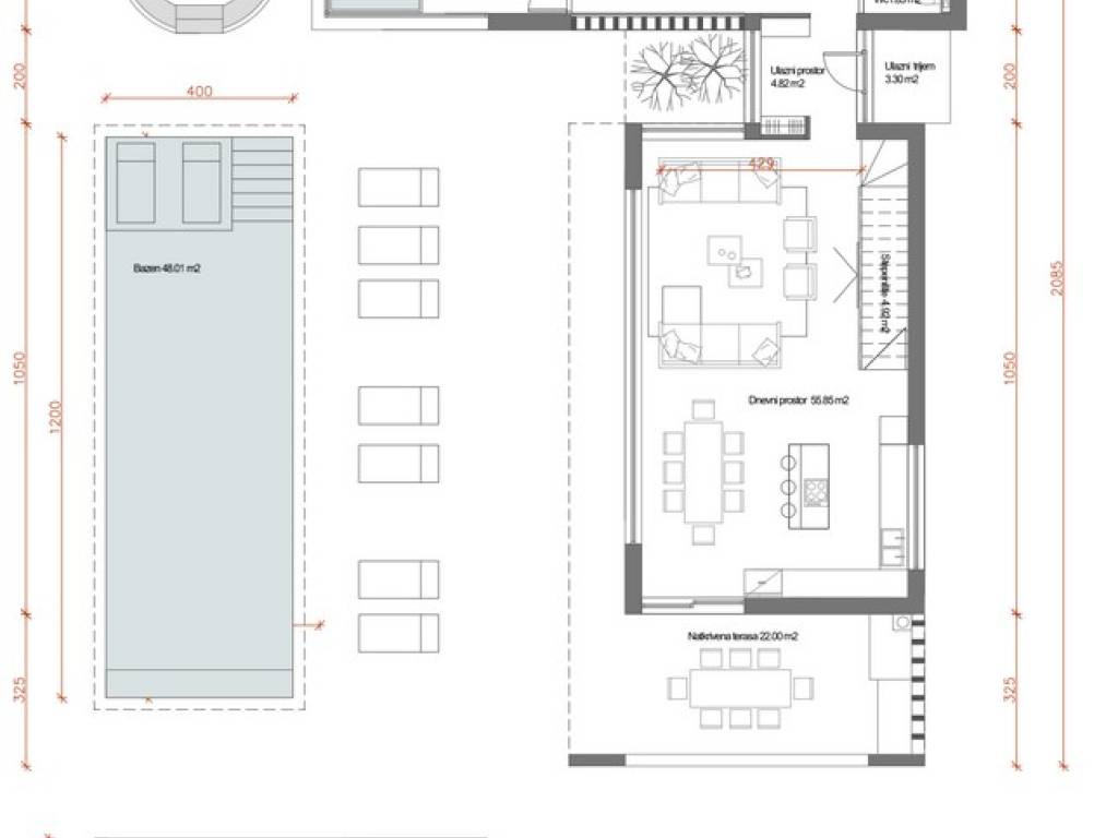
The contemporary villa currently under construction spans 205 m², offering both comfort and privacy on a 680 m² landscaped plot. Designed across two levels, the villa features a range of amenities aimed at maximizing the convenience and well-being of its future residents.

The ground floor (121.46 m²) welcomes you with a spacious entrance leading into an open-plan living area, seamlessly connecting the kitchen and dining space. This level also includes a bedroom, a fully equipped gym with a sauna for relaxation, as well as a toilet and a laundry room for added functionality.

The first floor (81.73 m²) houses three generously sized bedrooms, each with its own en-suite bathroom, ensuring privacy and comfort for every family member or guest. Additionally, this floor features a designated work area for a quiet and productive atmosphere, along with a large terrace complete with a hydromassage tub, offering an ideal outdoor retreat overlooking the garden.

The outdoor space is thoughtfully designed, featuring a 48 m² heated swimming pool surrounded by a sun deck, as well as a covered terrace equipped for a summer kitchen and barbecue, perfect for outdoor gatherings and relaxation.

The property also provides three dedicated parking spaces.

ID CODE: 8734633

Tex Immobilie
Agent s licencom
Mob: 0989826003
Tel: 0994705455
E-mail: info@tex-immobilie.com
www.tex-immobilie.com
Features
Type
Single-family detached house
Contract
Sale
Building floors
1
Lift
No
Surface
205 m²
Rooms
5+
Bedrooms
4
Bathrooms
3+
Balcony
No
Terrace
Yes
Garage, car parking
3 parking space
Heating
Independent, air heating
Air conditioning
Independent, cold/hot
Price information
Price
€ 830,000
Price per m²
4,049 €/m²
Energy efficiency
  • Year of construction

    2025
  • Heating

    Independent, air heating
  • Air conditioner

    Independent, cold/hot
  • Energy certification

    Not classifiable
Discover every corner of the property
+18
Additional options

Contact the advertiser

Or