3-room flat Tisno, Tisno

€ 184,900
3
50 m²
1
1
No
Terrace

Note

Listing updated on 01/22/2026
Description

This description has been translated automatically and may not be accurate

reference: AT-961

Real Estate Tisno, NEW BUILDING, Two-room apartment A3 in a quiet location

NEW CONSTRUCTION
Two-room apartment for sale in Tisno in a quiet location!

The apartment is located in a house that consists of 3 other apartments.
The house has two apartments on the ground floor and two apartments on the first floor.

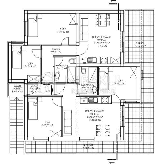
APARTMENT A3 is located on the first floor - area 50,10 m2 and consists of:
Room 1 - 10.03m2
Room 2 - 8.9m2
Kitchen with living room - 18.56m2
Bathroom - 4.1 m2
Terrace (partially covered) - 18.43m2

The apartment will have air conditioning, a kitchen and a fully equipped bathroom.
The possibility of arranging according to the customer's request.
In the common yard there is a barbecue and a space for socializing.
It is also located in an undeveloped part of the town, and the visualization shows only the object, without the surroundings.

The completion of the project is planned by the beginning of the 2023 season - turnkey.
You can view other available flats/apartments on our website.
There is a possibility to buy a garage space.

Parking: 1 parking space
Distance from the sea: 250 m

ID CODE: AT-961

Mirakul Adria
Mob: +385 91 150 5210 Philipp Drescher (DE, EN, HR)
Tel: +385 22 438 023 (DE, EN, HU, HR)
E-mail: mirakul@mirakul-adria.hr
http://mirakul-adria.hr
Features
Type
Apartment
Contract
Sale
Floor
1 floor
Lift
No
Surface
50 m²
Rooms
3
Bedrooms
2
Bathrooms
1
Balcony
No
Terrace
Yes
Garage, car parking
1 parking space
Heating
Independent, air heating
Air conditioning
Independent, cold/hot
Other features
  • Alarm system
Price information
Price
€ 184,900
Price per m²
3,698 €/m²
Energy efficiency

Energy consumption

A

Discover every corner of the property
+10
Additional options

Contact the advertiser

Or