1/13


4-room flat Vodice, Vodice
€ 595,889
Listing updated on 01/22/2026
Description
reference: 4531
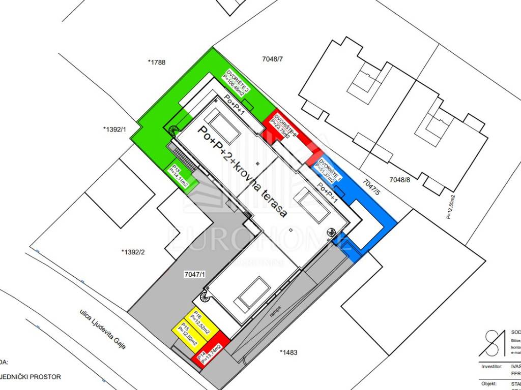
Flat Vodice, 121,61m2
ID CODE: 4531
Željko Bobić
Savjetnik u prodaji
Mob: 091 5498 357
Tel: 01 6231 365
E-mail: zeljko@eurohome-nekretnine.hr
www.eurohome-nekretnine.hr
Features
- Type
- Apartment
- Contract
- Sale
- Floor
- Ground floor
- Lift
- No
- Surface
- 121 m²
- Rooms
- 4
- Bedrooms
- 3
- Bathrooms
- 2
- Balcony
- No
- Terrace
- Yes
- Garage, car parking
- 1 in garage/box, 2 parking space
- Heating
- Independent, air heating
- Air conditioning
- Independent, cold/hot
Other features
Price information
- Price
- € 595,889
- Price per m²
- 4,925 €/m²
Energy efficiency
Discover every corner of the property
Additional options