Shop - Commercial property for Rent

€ 1/month
4
119 m²

Note

Listing updated on 01/22/2026
Description

This description has been translated automatically and may not be accurate

reference: 1058

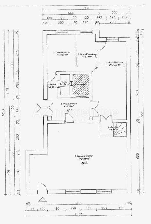
Business premise Donji grad, Donji Grad, 119m2

STREET VENUE FOR RENT, KRALJA TOMISLAV SQUARE, 119 m2

Street premises for rent in a prime location in the center of Zagreb, on the ground floor of a commercial and residential building.
The space consists of a larger entrance room with a shop window, 3 office rooms, one of which can also be used as a storage room due to the side entrance, and a toilet.
It is for rent unfurnished, air-conditioned, with two toilet, and is suitable for various activities, a company representative office, a small clinic, a travel agency, a beauty salon, a shop, an architectural office, a hair salon.
The price is on request. For more information, call us.

ID CODE: 1058

Andreja Brkić
Agent s licencom
Mob: +385 95 861 9511
E-mail: info@aznekretnine.hr
www.aznekretnine.hr
Features
Contract
Rent
Surface
119 m²
Rooms
4 rooms
Building floors
3
Price information
Price
€ 1/month
Price per m²
0 €/m²
Detail of costs
Deposit
Not indicated
Energy efficiency
  • Heating

    Central, floor heating
  • Air conditioner

    Independent, cold/hot
  • Energy certification

    Not classifiable
Floorplan
Additional options

Contact the advertiser

Or