4-room flat Poreč, Luka, Poreč

€ 542,000
4
152 m²
3
G
No
Balcony
Terrace

Note

Listing updated on 04/14/2026
Description

This description has been translated automatically and may not be accurate

reference: ID02114

Poreč area, modern apartment with swimming pool! New!

Poreč, surroundings - Modern apartment with a pool near the sea and the center! Sea View!

Welcome to this beautiful apartment with a total living area of 152 m2, located in a beautiful location just near the sea and the town center on the beautiful west coast of Istria. The apartment is located in a building with only 4 apartments, in an interesting location that ideally combines a quiet environment, proximity to the coast and easy access to all the facilities needed for everyday life.

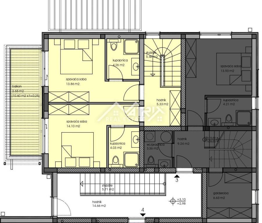
The apartment is on two floors and is located on the ground floor and first floor of this beautiful urban villa. On the ground floor there is a large open space that unites the kitchen, dining room and living room with access to the outdoor pool terrace through large glass walls that allow plenty of natural daylight. On the ground floor there is also a bedroom with its own bathroom, a laundry room and a guest toilet. The internal staircase leads to the first floor where, in addition to a spacious hallway with a wardrobe, there are two bedrooms, each with its own bathroom and access to a covered balcony with a beautiful open view of the sea and nature. The apartment is sold unfurnished with included carpentry in the bathroom.

The central part of the spacious garden is a 17.5 m2 swimming pool with a sunbathing area, and a covered part of the terrace, which is designed as a space for an outdoor dining room. A lawn will be laid on the rest of the garden. In addition, the apartment has an outdoor uncovered parking space and an additional storage room located in the basement of the building.

Air conditioners are used for cooling comfort in the apartment, and electric underfloor heating is installed in the living room and bathrooms for maximum comfort. Electric blinds are installed on all larger openings.

The apartments are currently in the final phase of construction, and occupancy is planned for mid-2024. When buying real estate, the buyer is exempt from paying real estate sales tax.

This apartment provides an ideal home for all those who aspire to a luxurious and relaxing lifestyle in beautiful surroundings. Whether you are looking for a peaceful retreat to get away from the hustle and bustle of everyday life or are looking to invest, this property is sure to meet and exceed all your expectations.

ID CODE: ID02114

Daniel Matković
Agent s licencom
Mob: +385 95 506 58 05
Tel: +385 52 417 779
E-mail: daniel@matrixrealestate.hr
https://matrixrealestate.hr/

Matrix Real Estate
Voditelj ureda
Mob: +385 52 417 779
Tel: +385 52 417 779
E-mail: info@matrixrealestate.hr
https://matrixrealestate.hr/
Features
Type
Apartment
Contract
Sale
Floor
Ground floor
Building floors
2
Lift
No
Surface
152 m²
Rooms
4
Bedrooms
3
Bathrooms
3
Balcony
Yes
Terrace
Yes
Garage, car parking
1 parking space
Air conditioning
Independent, cold/hot
Price information
Price
€ 542,000
Price per m²
3,566 €/m²
Energy efficiency
  • Year of construction

    2024
  • Air conditioner

    Independent, cold/hot
  • Energy certification

    Not classifiable
Floorplan
Discover every corner of the property
+20
Additional options

Contact the advertiser

Or