1/25


Single-family detached house Lijevo Sredičko, Pisarovina, Pisarovina
€ 110,000
Listing updated on 01/22/2026
Description
reference: 1612
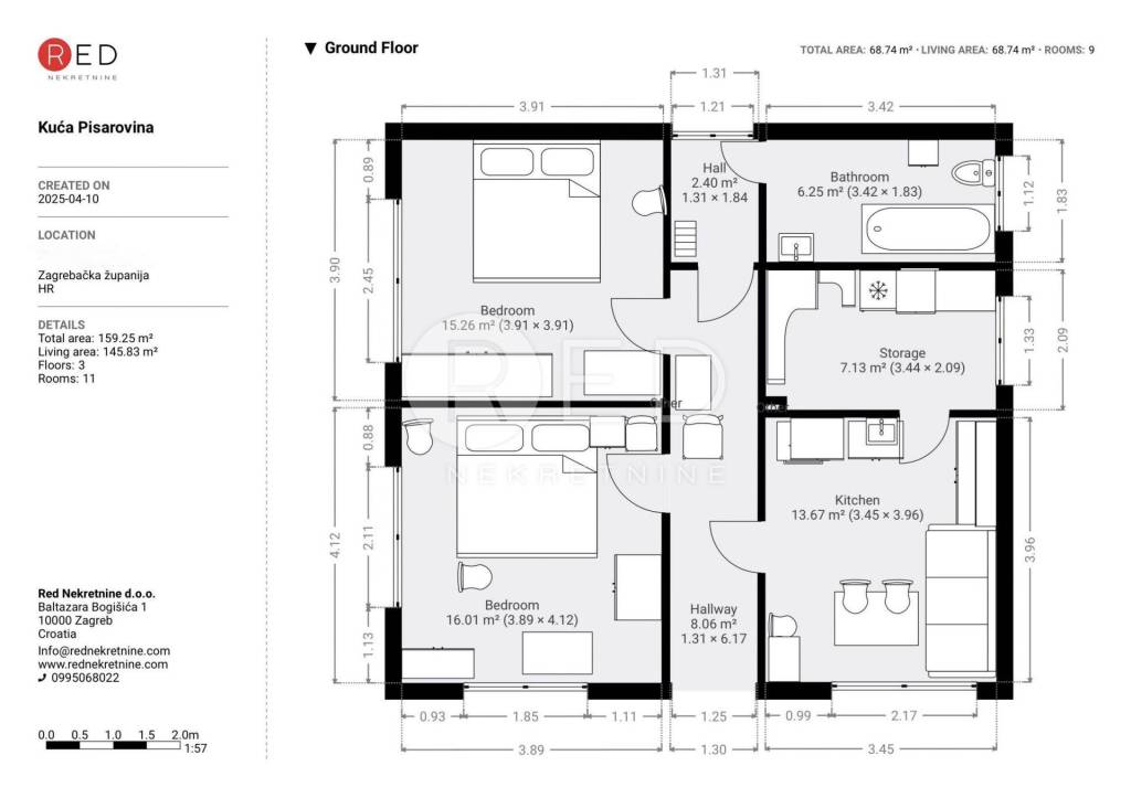
House Lijevo Sredičko, Pisarovina, 100m2
ID CODE: 1612
Mario Šarlija
Viši savjetnik
Mob: 0995068022
E-mail: mario@rednekretnine.com
www.rednekretnine.com
Features
- Type
- Single-family detached house
- Contract
- Sale
- Lift
- No
- Surface
- 100 m²
- Rooms
- 5
- Bedrooms
- 2
- Bathrooms
- 1
- Balcony
- No
- Terrace
- No
- Garage, car parking
- 1 in garage/box, 7 parking space
Price information
- Price
- € 110,000
- Price per m²
- 1,100 €/m²
Energy efficiency
Year of construction
1962Energy certification
Not classifiable
Discover every corner of the property
Additional options