1/13


3-room flat Premantura, Medulin, Premantura, Pomer, Medulin
€ 444,000
Listing updated on 01/22/2026
Description
reference: 2856
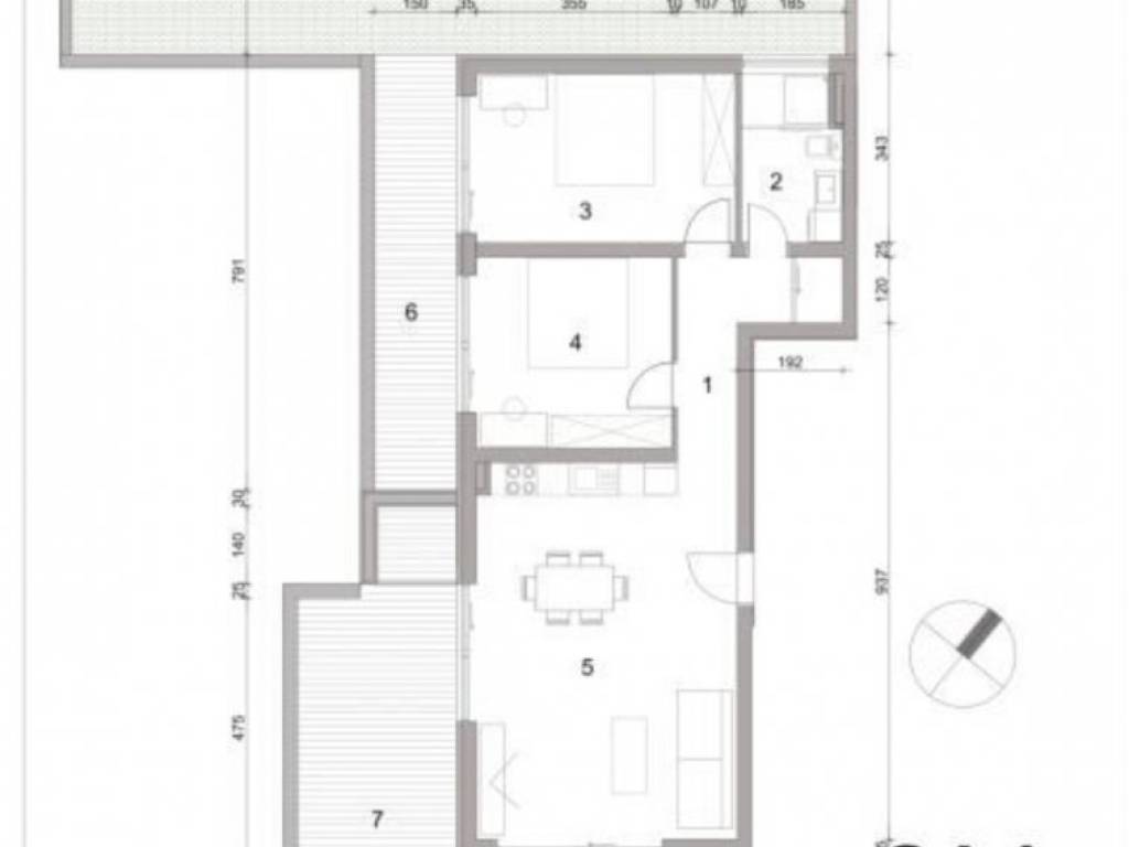
Flat Premantura, Medulin, 71,05m2
ID CODE: 2856
M & M LEGAL IMMOBILIEN
Mob: +385 98 575 313
Tel: +385 98 575 313
E-mail: info@mmlegal.hr
www.mmlegal.hr
Features
- Type
- Apartment
- Contract
- Sale
- Floor
- 2 floor
- Building floors
- 2
- Lift
- No
- Surface
- 71 m²
- Rooms
- 3
- Bedrooms
- 2
- Bathrooms
- 1
- Balcony
- Yes
- Terrace
- Yes
- Garage, car parking
- 1 parking space
- Heating
- Independent, air heating
- Air conditioning
- Independent, cold/hot
Other features
Price information
- Price
- € 444,000
- Price per m²
- 6,254 €/m²
Energy efficiency
Discover every corner of the property
Additional options