4-room flat Vodice, Vodice

€ 243,000
4
81 m²
1
G
No

Note

Listing updated on 04/21/2026
Description

This description has been translated automatically and may not be accurate

reference: 7251-S1

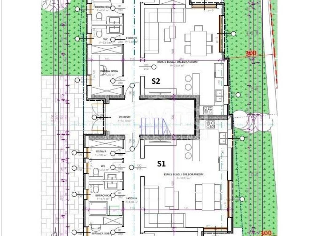
Vodice, apartment with total usable area of 81,29 m2, and garden, calm location

Vodice, new building, apartment on the ground floor of a residential building with a total of four residential units. Apartment S1 is located on the ground floor of the building, oriented to the south, with a total usable area of 81.29 m2. It consists of a hallway, toilet, bathroom, storage room, 3 bedrooms, a large living room with kitchen and dining room and access to a covered terrace and garden of 51.23 m2. The apartment has one outdoor parking space. The property is 1500 m from the beach and 1300 m from the town center. The planned move-in date is summer 2026.

ID CODE: 7251-S1

Diana Knežević
Mob: 00 385 95 289 4518
Tel: +385 22 444 620
E-mail: knezevic@domus-nekretnine.hr
http://domus-nekretnine.hr

Martina Silov
Mob: 00385 95 587 8860
Tel: +385 22 444 620
E-mail: martina@domus-nekretnine.hr
http://domus-nekretnine.hr

Katarina Marasović
Mob: 00 385 98 392 954
Tel: +385 22 444 620
E-mail: catherine@domus-nekretnine.hr
http://domus-nekretnine.hr
Features
Type
Apartment
Contract
Sale
Floor
Ground floor
Lift
No
Surface
81 m²
Rooms
4
Bedrooms
3
Bathrooms
1
Balcony
No
Terrace
No
Price information
Price
€ 243,000
Price per m²
3,000 €/m²
Energy efficiency
  • Energy certification

    Not classifiable
Discover every corner of the property
+4
Additional options

Contact the advertiser

Or