Single-family detached house Novigrad, Novigrad

€ 600,000
4
164 m²
3
No

Note

Listing updated on 01/22/2026
Description

This description has been translated automatically and may not be accurate

reference: ID03169

Novigrad area, semi-detached house under construction with a view of nature

Novigrad area – Elegant stone house with pool and garden

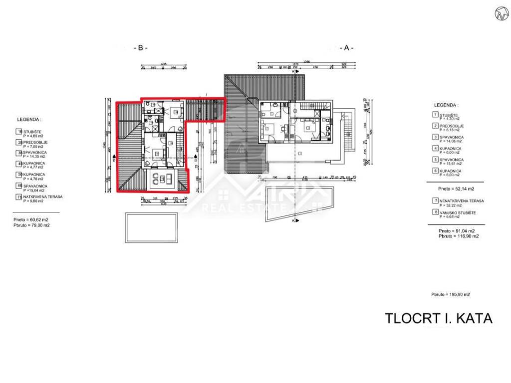
For sale: a beautiful stone house located in a peaceful setting near Novigrad, just a few minutes’ drive from the sea and well-maintained beaches. This elegant villa, with a total net area of 164 m² (gross 183 m²), is spread over two floors, offering the perfect balance of authentic Istrian charm and modern comfort.

The ground floor features a spacious open-plan living area with a kitchen and dining room that opens through large glass doors onto a covered terrace, garden, and pool – an ideal place for summer gatherings and evening relaxation. There is also an entrance hall, a guest toilet with laundry area, and a bedroom with a private bathroom.

Upstairs, you’ll find a hallway, a bedroom with en-suite bathroom, and a master bedroom with its own bathroom and access to a covered terrace, offering a peaceful spot for a morning coffee or quiet moments overlooking the garden.

The property is just 7 km from the center of Novigrad, the sea, and all amenities, yet provides complete tranquility and privacy.

A special advantage is the possibility of interior customization according to the buyer’s preferences, allowing every detail to reflect your personal style and taste.

This charming stone home perfectly combines authenticity, comfort, and elegance, making it an ideal choice for a family residence or a luxury holiday rental investment in the heart of Istria.

ID CODE: ID03169

Lemi Brajković Bassanese
Suradnik u procesu obuke
Mob: +385 99 206 38 91
Tel: +385 52 417 779
E-mail: lemi@matrixrealestate.hr
https://matrixrealestate.hr/

Matrix Real Estate
Voditelj ureda
Mob: +385 52 417 779
Tel: +385 52 417 779
E-mail: info@matrixrealestate.hr
https://matrixrealestate.hr/
Features
Type
Single-family detached house
Contract
Sale
Lift
No
Surface
164 m²
Rooms
4
Bedrooms
3
Bathrooms
3
Balcony
No
Terrace
No
Garage, car parking
1 in garage/box, 2 parking space
Price information
Price
€ 600,000
Price per m²
3,659 €/m²
Energy efficiency
  • Energy certification

    Not classifiable
Discover every corner of the property
+3
Additional options

Contact the advertiser

Or