3-room flat Privlaka, Privlaka

€ 225,000
3
62 m²
1
G
No
Terrace

Note

Listing updated on 04/16/2026
Description

This description has been translated automatically and may not be accurate

reference: A-3343

Apartment Privlaka, 62m2

PRIVLAKA - two-room apartment S1 on the ground floor of 62 m2 for sale, near the sea!!!

This new construction project with 6 residential units is located in an excellent location, only 300 m from the sea and sandy beaches.
This residential building consists of ground floor, 1st and 2nd floor.
Each apartment is provided with one parking space.

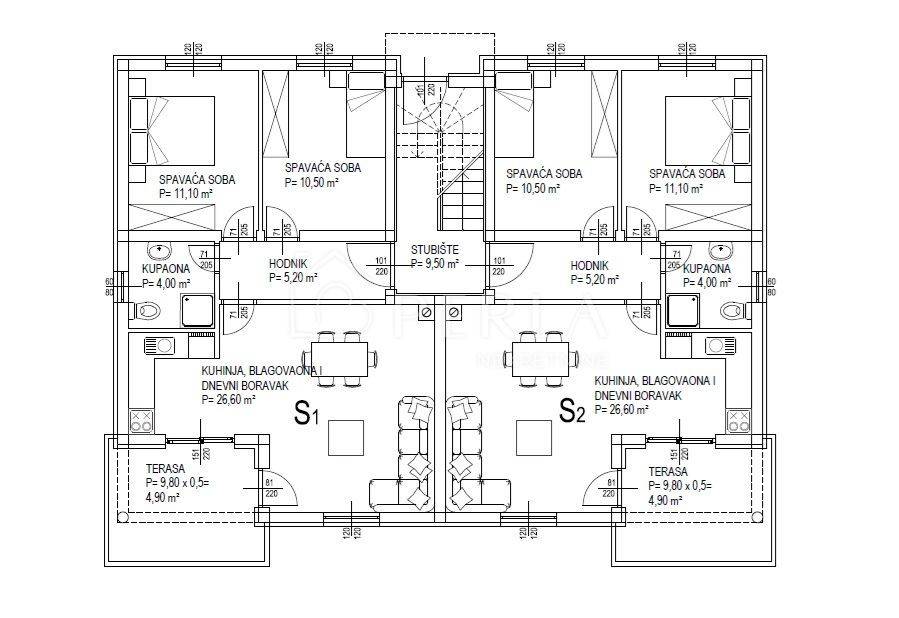
The two-room apartment S1 is located on the ground floor and consists of:
- Hallway (5.20 m²)
- Kitchen, dining room and living room (26.60 m²)
- Bathroom (4.00 m²)
- Bedroom 1 (11.10 m²)
- Bedrooms 2 (10.50 m²)
- Terraces (9.80 m2 - net 4.90 m²)
- 1 parking space
- Garden (14.7 m2)
Total net area of the apartment: 62.23 m2.
The total net area of ​​the apartment with accessories is: 77.00 m2.

Equipment of the apartment:
- Brick construction with excellent thermal and sound insulation.
- PVC carpentry with electric blinds and mosquito nets.
- Burglary and fire doors.
- Underfloor heating in the bathroom and living room.
- Inverter air conditioner (multi-split system).
- High-quality ceramic tiles, parquet floors and sanitary ware.
- Arranged environment and private parking lot.

The following apartments are for sale in the building:
S1 - ground floor, two-room apartment with garden 62.23 m2 - €225,000.00
S2 - ground floor, two-room apartment with garden 62.30 m2 - €225,000.00
S3 - 1st floor, two-room apartment 61.25 m2 - €195,000.00
S4 - 1st floor, two-room apartment 61.25 m2 - SOLD!
S5 - 2nd floor, two-room apartment with roof terrace 77 m2 - €245,000.00
S6 - 2nd floor, two-room apartment with roof terrace, 77 m2 - €245,000.00

Privlaka is a small fishing and tourist town near Zadar and the royal city of Nin.
Clean, clear sea and shallow sandy coves make it an ideal destination for family tourism.
Additional charm is provided by the mild Mediterranean climate, refreshed by the pleasant mistral.

*THE BUYER DOES NOT PAY THE AGENCY COMMISSION!
**BUYER DOES NOT PAY REAL ESTATE TRANSFER TAX!

ID CODE: A-3343

Iva Prtenjača
Mob: +385 (0)91 400 1414
Tel: +385 (0)99 284 1984
E-mail: iva@perlanekretnine.hr
www.perlanekretnine.hr

Alma Cipurković
Mob: +385 (0)91 400 1616
Tel: +385 (0)99 284 1984
E-mail: alma@perlanekretnine.hr
www.perlanekretnine.hr
Features
Type
Apartment
Contract
Sale
Floor
Ground floor
Building floors
2
Lift
No
Surface
62 m²
Rooms
3
Bedrooms
2
Bathrooms
1
Balcony
No
Terrace
Yes
Garage, car parking
1 parking space
Heating
Independent, air heating
Air conditioning
Independent, cold/hot
Price information
Price
€ 225,000
Price per m²
3,629 €/m²
Energy efficiency
  • Year of construction

    2026
  • Heating

    Independent, air heating
  • Air conditioner

    Independent, cold/hot
  • Energy certification

    Not classifiable
Discover every corner of the property
+5
Additional options

Contact the advertiser

Or