3-room flat Vidici, Šibenik, Šibenik

€ 203,280
3
58 m²
1
G
No

Note

Listing updated on 01/22/2026
Description

This description has been translated automatically and may not be accurate

reference: 114

NEW BUILD, VIDICI, 2-BEDROOM APARTMENT, AREA: 58.08 m²

A functional two-bedroom apartment is for sale, located on the ground floor of a small residential building with a total of 5 apartments, in a quiet area of the Vidici neighborhood in Šibenik. The location offers excellent connectivity to the city and close proximity to all essential amenities – shops, schools, kindergarten, public transportation, etc.

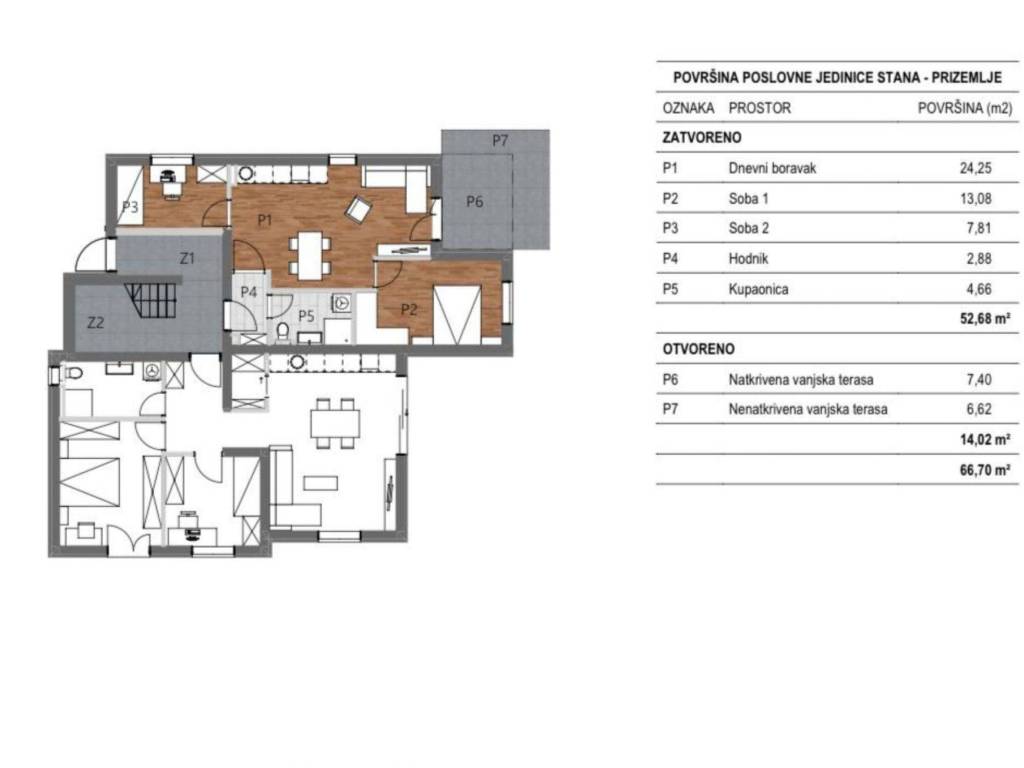
Area and layout:
Net usable area: 66.70 m²
Calculated (chargeable) area: 58.08 m²
Living room with dining area and kitchen (24.25 m²)
Hallway (2.88 m²)
Bedroom 1 (13.08 m²)
Bedroom 2 (7.81 m²)
Bathroom (4.66 m²)

The apartment also has two terraces:
Covered terrace (7.4 m²)
Uncovered terrace (6.62 m²)

One parking space is included in the price.

Technical specifications:
High-quality new construction with premium finishing
Underfloor heating in all rooms
Air conditioning
Functional layout, plenty of natural light
Peaceful location with great city connectivity

This apartment is an ideal choice for a young family, a couple, or as an investment for long-term rental.

For more information and to arrange a viewing, feel free to contact us.

ID CODE: 114

Andro Jakoliš
Mob: +385 99 347 3562
E-mail: andro@materra.estate
www.materra.estate
Features
Type
Apartment
Contract
Sale
Floor
Ground floor
Building floors
2
Lift
No
Surface
58 m²
Rooms
3
Bedrooms
2
Bathrooms
1
Balcony
No
Terrace
No
Garage, car parking
1 parking space
Price information
Price
€ 203,280
Price per m²
3,505 €/m²
Energy efficiency
  • Energy certification

    Not classifiable
Discover every corner of the property
+4
Additional options

Contact the advertiser

Or