Building land for Sale

€ 167,200
1,045 m²

Note

Listing updated on 01/28/2026
Description

This description has been translated automatically and may not be accurate

reference: 3906-A

Primošten, Vadalj, building plot 1,561m2 with sea view

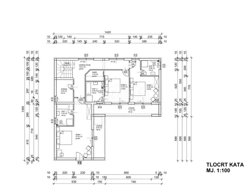
Primošten, Vadalj, quiet location, attractive building plot with sea view, total area of 1,045 m². The land has project documentation, and the building permit is in the process of being issued for the construction of a detached family house on two floors, ground floor and first floor, with a total area of 203 m² and a swimming pool. The land has a slight slope towards the west side. The distance from the town center and the beach is 5 km.

ID CODE: 3906-A

Diana Knežević
Mob: 00 385 95 289 4518
Tel: +385 22 444 620
Fax: +385 22 444 621
E-mail: knezevic@domus-nekretnine.hr
http://domus-nekretnine.hr

Martina Silov
Mob: 00385 95 587 8860
Tel: +385 22 444 620
Fax: +385 22 444 621
E-mail: martina@domus-nekretnine.hr
http://domus-nekretnine.hr

Katarina Marasović
Mob: 00 385 98 392 954
Tel: +385 22 444 620
Fax: +385 22 444 621
E-mail: catherine@domus-nekretnine.hr
http://domus-nekretnine.hr
Features
Contract
Sale
Type
Building land
Surface
1,045 m²
Price information
Price
€ 167,200
Price per m²
160 €/m²
Discover every corner of the property
+13
Additional options

Contact the advertiser

Or