2-room flat Vodice, Vodice

€ 282,000
2
76 m²
1
G
No
Terrace

Note

Listing updated on 05/07/2026
Description

This description has been translated automatically and may not be accurate

reference: 7286-A3

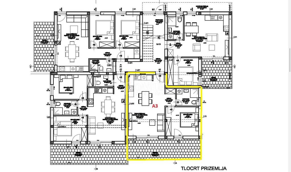
Vodice, new building, 1-bedroom apartment of 76,16 m2

Vodice, near Hangar Beach, there is a newly built residential building with 10 residential units. The building has a total of three floors: ground floor, first floor and second floor. The building is modernly equipped and has underfloor heating, high-quality floors and interior decoration, air conditioning for heating and cooling in each room and electric shutters. The expected move-in date is the end of 2026. The buyer does not pay real estate tax. The price of the apartments includes VAT. The buyer does not pay real estate transfer tax upon purchase.

Apartment "A3", located on the ground floor, offers 76.16 m² of living space. It includes a bathroom, bedroom, kitchen with dining area and living room with access to a covered terrace. An outdoor parking space is also available. The building is located only 800 m from the beach and 900 m from the city center and all amenities.

ID CODE: 7286-A3

Katarina Marasović
Mob: 00 385 98 392 954
Tel: +385 22 444 620
E-mail: catherine@domus-nekretnine.hr
http://domus-nekretnine.hr

Diana Knežević
Mob: 00 385 95 289 4518
Tel: +385 22 444 620
E-mail: knezevic@domus-nekretnine.hr
http://domus-nekretnine.hr

Martina Silov
Mob: 00385 95 587 8860
Tel: +385 22 444 620
E-mail: martina@domus-nekretnine.hr
http://domus-nekretnine.hr
Features
Type
Apartment
Contract
Sale
Floor
Ground floor
Building floors
2
Lift
No
Surface
76 m²
Rooms
2
Bedrooms
1
Bathrooms
1
Balcony
No
Terrace
Yes
Garage, car parking
1 parking space
Air conditioning
Independent, cold/hot
Other features
  • Security door
Price information
Price
€ 282,000
Price per m²
3,711 €/m²
Energy efficiency
  • Air conditioner

    Independent, cold/hot
  • Energy certification

    Not classifiable
Floorplan
Discover every corner of the property
+17
Additional options

Contact the advertiser

Or