3-room flat Vodice, Vodice

€ 340,000
3
104 m²
1
2
No

Note

Listing updated on 02/06/2026
Description

This description has been translated automatically and may not be accurate

reference: 7309-SJ11

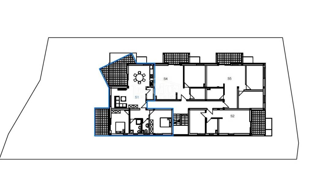
Vodice, new building, two-bedrooms apartment of 104,20 m²

Vodice, new construction, attractive location, the residential building consists of a total of 14 units.
Apartment SJ11 is located on the second floor, with a total usable area of 104.20 m², and comprises an entrance hallway, a bathroom, two bedrooms one of which has a private loggia of 11 m², a storage room, a WC, a kitchen, and a living room with access to a loggia of 18.10 m².
The apartment features a modern design and a functional layout, equipped with air conditioning in all bedrooms and the living room, security entrance doors, PVC joinery, and modern bathroom fixtures. One or two parking spaces available for purchase (subject to availability).
It is located 800 m from the sea and 500 m from the city center and all essential amenities.
The expected move-in date is summer 2026. The buyer is exempt from the 3% property tax.

ID CODE: 7309-SJ11

Katarina Marasović
Mob: 00 385 98 392 954
Tel: +385 22 444 620
Fax: +385 22 444 621
E-mail: catherine@domus-nekretnine.hr
http://domus-nekretnine.hr

Diana Knežević
Mob: 00 385 95 289 4518
Tel: +385 22 444 620
Fax: +385 22 444 621
E-mail: knezevic@domus-nekretnine.hr
http://domus-nekretnine.hr

Martina Silov
Mob: 00385 95 587 8860
Tel: +385 22 444 620
Fax: +385 22 444 621
E-mail: martina@domus-nekretnine.hr
http://domus-nekretnine.hr
Features
Type
Apartment
Contract
Sale
Floor
2 floor
Building floors
2
Lift
No
Surface
104 m²
Rooms
3
Bedrooms
2
Bathrooms
1
Balcony
No
Terrace
No
Heating
Independent, air heating
Other features
  • Security door
Price information
Price
€ 340,000
Price per m²
3,269 €/m²
Energy efficiency
  • Year of construction

    2026
  • Heating

    Independent, air heating
  • Energy certification

    Not classifiable
Floorplan
Additional options

Contact the advertiser

Or