1/12


Single-family detached house Stranići kod Lovreča, Sveti Lovreč, Sveti Lovreč
€ 950,000
Listing updated on 01/22/2026
Description
reference: 300391030-253
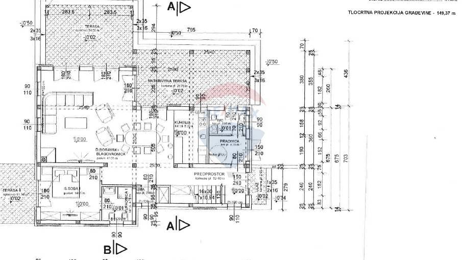
House Stranići kod Lovreča, Sveti Lovreč, 208,47m2
ID CODE: 300391030-253
Idnir Jahić
Prodajni predstavnik
Mob: +385 91 641 0001
Tel: +385 52 435 428
E-mail: i.jahic@remax-istra.hr
www.remax-centarnekretnina.com
Features
- Type
- Single-family detached house
- Contract
- Sale
- Building floors
- 2
- Lift
- No
- Surface
- 208 m²
- Rooms
- 5
- Bedrooms
- 4
- Bathrooms
- 3+
- Balcony
- Yes
- Terrace
- No
Price information
- Price
- € 950,000
- Price per m²
- 4,567 €/m²
Energy efficiency
Year of construction
2023Energy certification
Not classifiable
Discover every corner of the property
Additional options