1/11


Single-family detached house Maružini, Kanfanar, Kanfanar
€ 850,000
Listing updated on 01/22/2026
Description
reference: 300391030-295
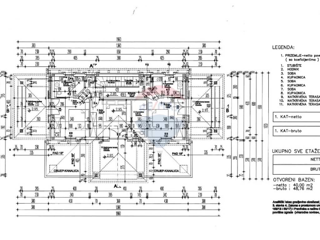
House Maružini, Kanfanar, 214,22m2
ID CODE: 300391030-295
Monika Jurman
Prodajni predstavnik
Mob: +385 91 641 5556
Tel: 00385 52 435 428
E-mail: m.jurman@remax-istra.hr
www.remax-centarnekretnina.com
Features
- Type
- Single-family detached house
- Contract
- Sale
- Building floors
- 2
- Lift
- No
- Surface
- 214 m²
- Rooms
- 5
- Bedrooms
- 4
- Bathrooms
- 3+
- Balcony
- Yes
- Terrace
- No
Price information
- Price
- € 850,000
- Price per m²
- 3,972 €/m²
Energy efficiency
Energy certification
Not classifiable
Discover every corner of the property
Additional options