Single-family detached house Klenovica, Novi Vinodolski, Novi Vinodolski

€ 575,000
5+
322 m²
3+
No

Note

Listing updated on 01/22/2026
Description

This description has been translated automatically and may not be accurate

reference: 110-046

Novi Vinodolski, Klenovica - Villa for renovation 322m2

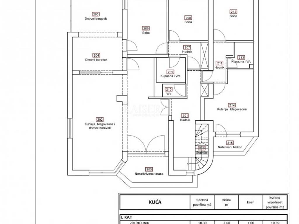
Kaiser Immobilien presents an old villa located in Klenovica next to Novi Vinodolski. The villa has a total of 322m2 of usable living space on two floors, and a 432m2 garden. On the ground floor there are: two storage rooms, a bedroom, a kitchen, a dining room, a living room, a boiler room, a toilet, and a wine cellar. On the first floor there are: a living room, a kitchen with a dining room, three bedrooms, an additional kitchen with a dining room, two bathrooms and a separate toilet, balcony and terrace. On the second floor there are: four bedrooms, two kitchens with a dining room, a living room, three bathrooms, three balconies, a terrace and a loggia. The villa requires complete renovation. This is an ideal investment opportunity. The villa is located only 100m from the sea and all necessary amenities. In the garden of the villa there is enough space for several parking spaces, and it is located in an accessible and quiet part of Klenovica. For more information, contact an agent.

ID CODE: 110-046

Davor Piškulić
Agent s licencom u posredovanju u prometu nekretnina
Mob: +385955838240, +385995677888
E-mail: davor@kaiser-immobilien.hr
www.kaiser-immobilien.hr
Features
Type
Single-family detached house
Contract
Sale
Lift
No
Surface
322 m²
Rooms
5+
Bedrooms
8
Bathrooms
3+
Balcony
No
Terrace
No
Air conditioning
Independent, cold/hot
Price information
Price
€ 575,000
Price per m²
1,786 €/m²
Energy efficiency
  • Year of construction

    1950
  • Air conditioner

    Independent, cold/hot
  • Energy certification

    Not classifiable
Discover every corner of the property
+11
Additional options

Contact the advertiser

Or