Single-family detached house Sveti Petar, Mošćenička Draga, Mošćenička Draga

€ 4,500/month
5
190 m²
3+
No
Terrace

Note

Listing updated on 04/21/2026
Description

This description has been translated automatically and may not be accurate

reference: 101-245

Opatija, Mošćenička Draga - Long-term rental of a brand new luxury villa with a swimming pool 800 m from the sea

Beautiful newly built villa with swimming pool in Mošćenička Draga, 800 meters from the center and the beach

Located in a quiet part of the charming village of Mošćenička Draga and again within walking distance from the center and the sea, this luxury villa offers an extraordinary opportunity for maximum comfort living in one of the most beautiful places on the Opatija Riviera and enjoying the charms of seaside life.
The villa is surrounded by greenery and its position on a hill and sufficient distance from only a few nearby family houses are a guarantee of perfect peace and privacy.
The villa is decorated with an elegant and contemporary exterior and interior design with a wonderful view of the surrounding nature.

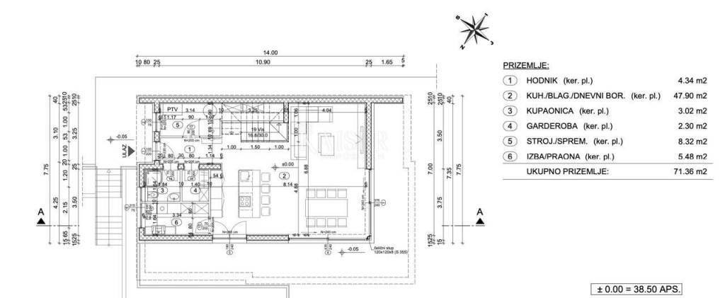
The interior of this property has been carefully designed and extends to the ground floor and first floor.
On the ground floor there is a spacious living room with dining room and kitchen, toilet, laundry room, storage room and engine room.
From this living area there is a direct exit to the outdoor terrace with a covered summer kitchen, swimming pool, sunbathing area and lounge area, which is ideal for summer gatherings.
On the first floor is the sleeping part of the villa with a total of four bedrooms, each with its own modern bathroom and access to a balcony with a wonderful view of nature and the sea.
Everything is made of high-quality materials, and during the design, construction and furnishing of the villa, real attention was paid to every detail.
As for the exterior, the villa is surrounded by a beautiful, very practically and functionally designed garden with a large partially covered terrace, a swimming pool, a covered summer kitchen, a sundeck and a lounge area including a stone fireplace. Beyond the boundaries of the garden, the garden smoothly transitions into a green oasis, which gives the entire exterior of the villa a completely unique atmosphere and ensures maximum privacy and enjoyment throughout the year.

Characteristics of the property:

House type: Detached villa
Year of construction: 2024.
New construction, modern construction style
Energy efficiency: A+

The villa is rented fully furnished and equipped.

Exceptionally high-quality real estate without any compromises, which represents a perfect combination of luxury, modern design and natural surroundings.
An ideal choice for maximum comfortable family life in an ideal location in the immediate vicinity of the center of Mošćenička Draga, all amenities and the coast.

Coast / village center: 800 m / 10 minutes on foot (650 m as the crow flies)
Restaurant: 250 m
Supermarket: 750 m
Opatija: 13 km / 20 minutes
Rijeka: 25 km / 35 minutes
Rijeka Airport: 55 km / 55 minutes
Pula Airport: 100 km / 70 minutes
Ljubljana: 120 km / 2 hours
Vienna, Munich, Budapest: 500 km

The commission of the agency for the tenant is one monthly rent + VAT.
The commission covers all services related to the conclusion of the rental agreement.

For more detailed information, please contact:
Jirka Nerad
Phone: +385 911 632 884
E-mail: jirka@kaiser-immobilien.hr
Property code: 101-245

Thanks for your interest!

ID CODE: 101-245

Jirka Nerad
Agent s licencom u posredovanju u prometu nekretnina
Mob: +385911632884, +385995677888
E-mail: jirka@kaiser-immobilien.hr
www.kaiser-immobilien.hr
Features
Type
Single-family detached house
Contract
Rent
Building floors
1
Lift
No
Surface
190 m²
Rooms
5
Bedrooms
4
Bathrooms
3+
Balcony
No
Terrace
Yes
Garage, car parking
3 parking space
Heating
Independent, air heating
Air conditioning
Independent, cold/hot
Price information
Price
€ 4,500/month
Price per m²
24 €/m²
Detail of costs
Deposit
Not indicated
Energy efficiency

Energy consumption

A+

Floorplan
Discover every corner of the property
+53
Additional options

Contact the advertiser

Or