4-room flat Glavani, Kostrena, Kostrena

€ 880,000
4
165 m²
2
No
Terrace

Note

Listing updated on 02/17/2026
Description

This description has been translated automatically and may not be accurate

reference: 129-49

Kostrena, Glavani - three-bedroom apartment with a garden in a modern new building

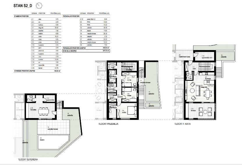
Kaiser Immobilien offers an exclusive modern property in Kostrena – an S2-D apartment measuring 164.90 m² with a private pool and a beautiful view of the Kvarner Bay. In the quiet settlement of Glavani in Kostrena, surrounded by greenery and a Mediterranean atmosphere, this luxurious apartment is located, combining contemporary architectural expression, top-quality construction and complete comfort. The spacious interior of 164.90 m² is designed as a three-room apartment with a living room, modern bathrooms, an additional toilet, a wardrobe and practical utility rooms. The open living area with kitchen and dining room exudes light and elegance, and large glass walls open up a spectacular view of the sea and the islands of Kvarner. The apartment has an adjoining garden of 182.60 m², carefully landscaped and enhanced by a private pool of 17.64 m², which provides a feeling of complete privacy and peace. Special emphasis was placed on the selection of materials and construction technology – only top-quality materials were used, and the building is equipped with underfloor heating via a heat pump, air conditioning, three-layer parquet, the highest quality ceramics and aluminum joinery with large glass surfaces that provide additional warmth and light to the space. The apartment has two parking spaces and a storage room, and the entire project stands out with its thoughtful design and architecture that ensures long-term value and a high level of living comfort. The location in Kostrena perfectly combines peace and privacy with the proximity of all the amenities needed for modern life. In the immediate vicinity there are schools, kindergartens, shops, promenades, bicycle paths and well-maintained beaches, while the center of Rijeka is only a ten-minute drive away. Kostrena is known for its beautiful coast, long promenade and Mediterranean landscape that provides a high quality of life throughout the year. In addition to excellent connections with Rijeka and the entire Kvarner, Kostrena is located at an ideal distance from major European cities. It is about 130 kilometers to Ljubljana, 90 kilometers to Trieste, 160 kilometers to Zagreb, 220 kilometers to Venice, while Munich and Vienna are approximately 500 kilometers away. Thanks to the highway and the proximity of Rijeka Airport, travel is easy and fast, which further increases the attractiveness of this location. This property represents the perfect combination of luxury, comfort and modern elegance. It is ideal for family life, but also as an investment for elite tourism. Kaiser Immobilien - your reliable partner in finding a home with a sea view. The agency's commission for the buyer is 3% + VAT. The commission covers all services related to the purchase and is paid only in the case of purchasing a property, upon conclusion of the legal act. For all additional information, please contact: Marijana Cuculić Phone: +385981869950 E-mail: marijana.cuculic@kaiser-immobilien.hr Nelica Arsenijević Phone: +385919254809 E-mail: nelica@kaiser-immobilien.hr

ID CODE: 129-49

Nelica Arsenijević
Agent s licencom u posredovanju u prometu nekretnina
Mob: +385919254809, +385995677888
E-mail: nelica@kaiser-immobilien.hr
www.kaiser-immobilien.hr

Marijana Svijetlana Cuculić
Agent posredovanja u prometu nekretnina
Mob: +385981869950, +385995677888
E-mail: marijana.cuculic@kaiser-immobilien.hr
www.kaiser-immobilien.hr
Features
Type
Apartment
Contract
Sale
Lift
No
Surface
165 m²
Rooms
4
Bedrooms
3
Bathrooms
2
Balcony
No
Terrace
Yes
Garage, car parking
2 parking space
Heating
Independent, air heating
Air conditioning
Independent, cold/hot
Price information
Price
€ 880,000
Price per m²
5,333 €/m²
Energy efficiency
  • Year of construction

    2026
  • Heating

    Independent, air heating
  • Air conditioner

    Independent, cold/hot
  • Energy certification

    Not classifiable
Discover every corner of the property
+5
Additional options

Contact the advertiser

Or