Building land for Sale

€ 545,000
1,400 m²

Note

Listing updated on 01/23/2026
Description

This description has been translated automatically and may not be accurate

reference: 200

Attractive land with a valid building permit

In a sought-after location in Poreč, 1,500 m from the seashore, a building plot is for sale with a valid building permit for the construction of a holiday home and an auxiliary building, and, additionally, a preliminary design for the construction of a second house. There is also the option of amending the existing building permit for the construction of a multi-family building with 5 residential units (300 m2 in floor plan).
The land is located in a residential area surrounded by family houses and holiday homes and has a total area of ​​1,400 m2. The access to the land is from an asphalt road and all infrastructure is located in the immediate vicinity.

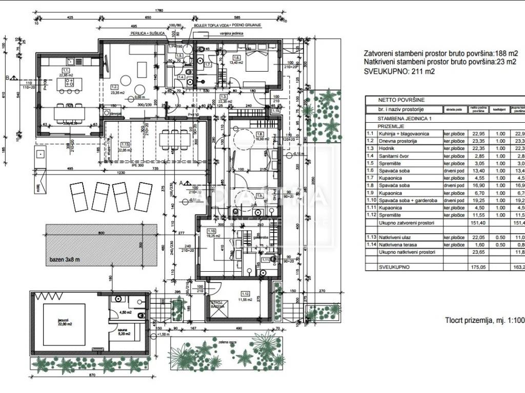
According to the current building permit, the house has a total net area of ​​163.22 m2 and consists of a spacious open space living area with a kitchen and dining area and access to a covered terrace, three bedrooms with private bathrooms, a storage room, a guest toilet and an additional storage room intended for the pool engine room. In the extension, there is an 8X3 m swimming pool with a sunbathing area and an auxiliary building/wellness of 31.15 m2 with a jacuzzi, sauna and bathroom. Within the garden there is space for two parking spaces.

Considering its attractive location, this land represents an excellent business investment.

Contact:
Vladimir Ivanisevic
Licensed agent
Mobile: +385 (0)91 552 20 83
E-mail: adastranekretnine@gmail.com

ID CODE: 200

Vladimir Ivanišević
Voditelj ureda
Mob: +385 (0)91 552 20 83
E-mail: vlado@adastranekretnine.hr
www.adastranekretnine.hr
Features
Contract
Sale
Type
Building land
Surface
1,400 m²
Price information
Price
€ 545,000
Price per m²
389 €/m²
Discover every corner of the property
+3
Additional options

Contact the advertiser

Or