Apartment Grebaštica, Šibenik - Okolica, Šibenik

€ 385,000
5
95 m²
2
2
No

Note

Listing updated on 02/17/2026
Description

This description has been translated automatically and may not be accurate

reference: 137-133

Grebaštica, Šibenik - Spacious three-bedroom apartment with two large loggias, 100 m from the sea

Kaiser Immobilien is proud to present: Spacious five-bedroom penthouse with large terrace, Grebaštica
In a modern residential building in an attractive location in Grebaštica, just 100 meters from the sea, Kaiser Immobilien is proud to offer for sale this extraordinary five-bedroom penthouse. Located on the second floor, this apartment offers impressive spaciousness, a functional layout and a large covered terrace, ideal for enjoying the view and the Mediterranean lifestyle.
ABOUT THE APARTMENT:
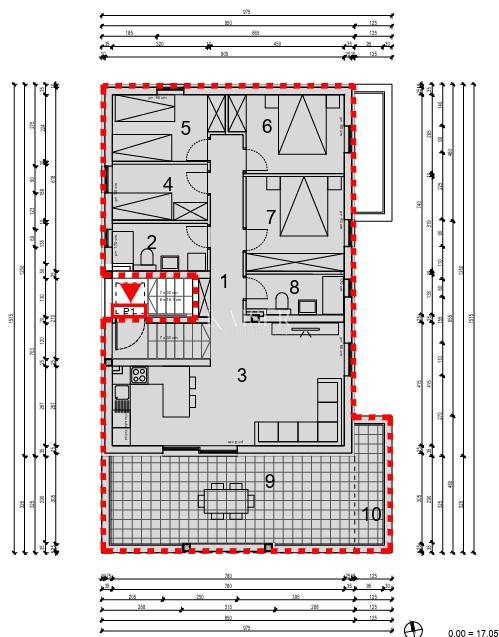
The apartment, marked P1 in building 4, is located on the second floor and offers a total net usable area of 95.68 m² (including the living area and outdoor areas according to coefficients). The interior living space of 82.63 m² is extremely spacious and cleverly arranged, providing maximum comfort for a large family.
ROOM LAYOUT:
Living room, kitchen and dining room: 25.79 m² – Spacious and bright open space with access to a large covered terrace.
Bedroom 1: 6.03 m²
Bedroom 2: 7.90 m²
Bedroom 3: 9.48 m²
Bedroom 4: 10.51 m²
Bathroom 1: 4.94 m²
Bathroom 2: 4.94 m²
Communication/Hallway: 13.04 m²
OUTDOOR SPACES:
This penthouse stands out with two outdoor areas that provide additional space for outdoor living:
Covered terrace: 24.19 m²
Uncovered balcony: 3.80 m²
LOCATION AND ADDITIONAL BENEFITS:
Exceptional location: Located just 100 meters from the sea and the beautiful beaches of Grebaštica.
Proximity to amenities: All necessary amenities are nearby - restaurants, cafes, shops.
Peaceful environment: The secluded position ensures peace and quiet, ideal for a break from the hustle and bustle of everyday life.
Connectivity: Grebaštica has excellent transport connections and is located halfway between the historic city of Šibenik and the tourist pearl of Primošten.
This spacious penthouse is the perfect opportunity for those looking for ultimate comfort and luxury near the sea, either for year-round living or as an exclusive holiday property.
The buyer's agency fee is 3% + VAT and is paid in the case of purchasing a property, upon conclusion of the first legal act. Viewing the property is possible only with the prior signing of a real estate brokerage contract.
If you would like to visit the property in person, please contact:
Joško Bašić
E-mail: josko@kaiser-immobilien.hr
Tel: +385-91-511-2993
http://kaiser-immobilien.hr/

ID CODE: 137-133

Joško Bašić
Agent posredovanja u prometu nekretnina
Mob: +385915112693, +385995677888
E-mail: josko@kaiser-immobilien.hr
www.kaiser-immobilien.hr
If you want to know more, you can talk to Joško Bašić.
Features
Type
Apartment
Contract
Sale
Floor
2 floor
Building floors
2
Lift
No
Surface
95 m²
Rooms
5
Bedrooms
4
Bathrooms
2
Balcony
No
Terrace
No
Price information
Price
€ 385,000
Price per m²
4,053 €/m²
Energy efficiency

Energy consumption

A+

Floorplan
Discover every corner of the property
+6
Additional options

Contact the advertiser

Or