Building land for Sale

€ 350,000
107 m²

Note

Listing updated on 01/23/2026
Description

This description has been translated automatically and may not be accurate

reference: 1041-328

A house with 3 bedrooms and a swimming pool in the vicinity of Svetvinčent!

Istria, surroundings of Svetvinčenat

House for sale in a quiet place near Svetvinčenat and Vodnjan, ideal for family use or tourist rental. This functional villa offers everything you need for a pleasant stay, and the completion of construction is planned by the end of 2025. The house will be ready for occupancy on a "turnkey" basis.

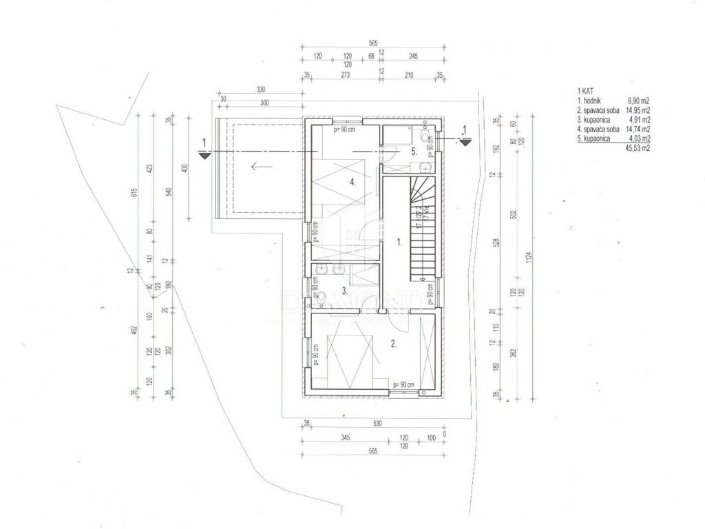
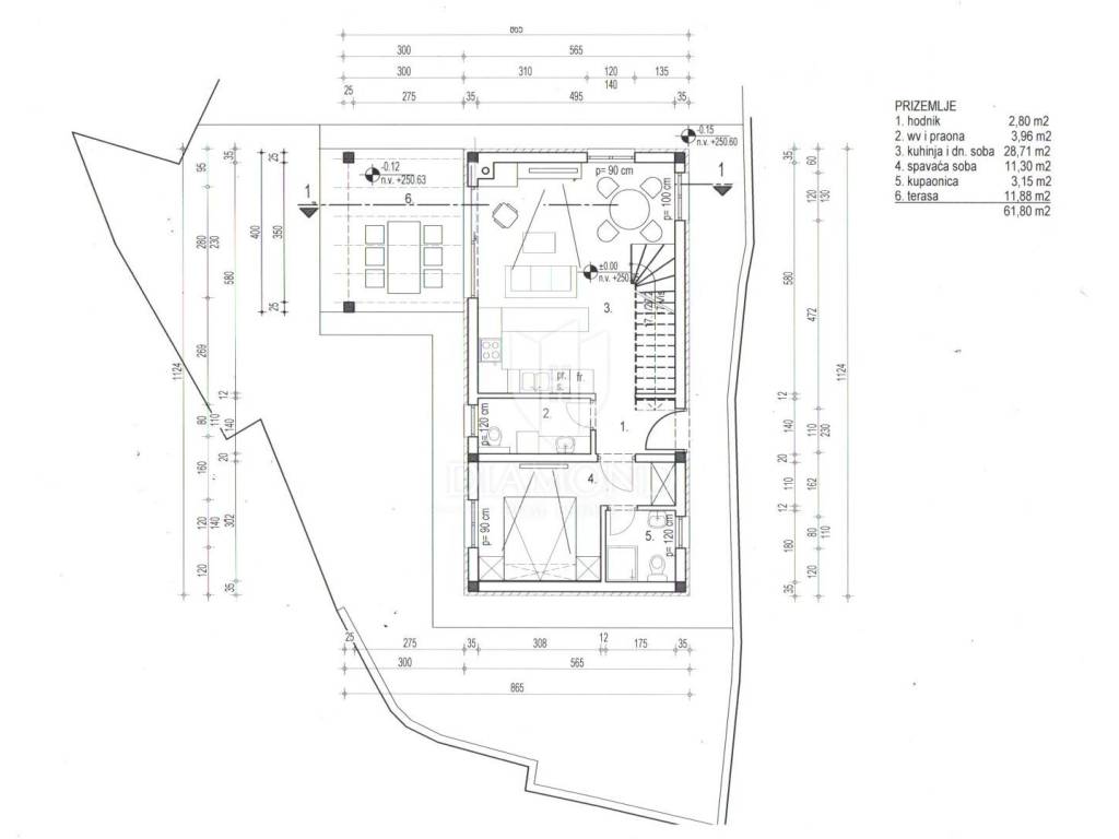
The house will consist of a ground floor and a first floor, connected by internal stairs. On the lower floor there is a spacious living room with a kitchen and dining room united in an open concept that provides a comfortable space for everyday life, a bedroom, a bathroom and an additional toilet. Two bedrooms are located on the upper floor, each with its own bathroom, ensuring comfort for all household members or guests. A 4 x 7 m² swimming pool with a sunbathing area is planned next to the house. Next to the pool there is a terrace and a small house with a fireplace, intended for outdoor enjoyment during warm days and evenings.

This house combines simplicity and practicality, it is ideal for a family vacation, but also as an attractive rental option due to its quiet location and proximity to popular destinations in Istria. A great opportunity for anyone who wants a new construction in Istria at an affordable price, with planned completion by the end of 2025!

ID CODE: 1041-328
Features
Contract
Sale
Type
Building land
Surface
107 m²
Price information
Price
€ 350,000
Price per m²
3,271 €/m²
Discover every corner of the property
+3
Additional options

Contact the advertiser

Or