Single-family detached house Sveti Lovreč, Sveti Lovreč

€ 740,000
5+
168 m²
3
No

Note

Listing updated on 01/24/2026
Description

This description has been translated automatically and may not be accurate

reference: ALG-2877

Istria, Sv. Lovreč, Modern high-quality villa with pool and mediterranean garden

Istria, Sv. Lovreč, Modern high-quality villa with pool and mediterranean garden

This stunning villa, currently under construction, is located in the peaceful village of Sv. Lovreč, near Poreč. With a total surface area of 168.40 m² and situated on a 751 m² plot, this property offers contemporary design, modern construction materials, and exceptional quality. It’s an ideal home for those who value safety, functionality, and premium living.

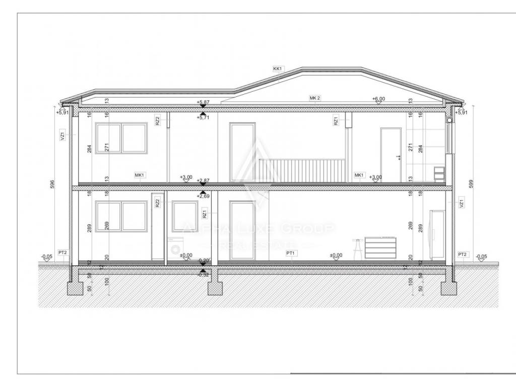
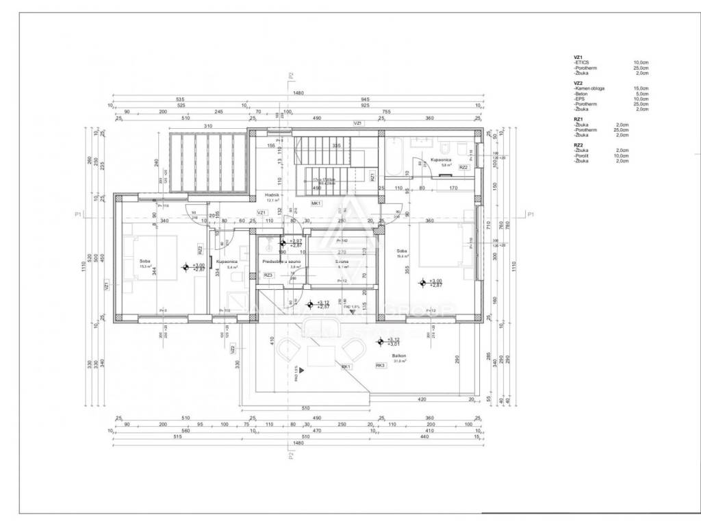
The villa spans two levels:
On the ground floor, you’ll find a spacious living room, kitchen, and dining area connected by large glass walls to a covered terrace, summer kitchen, and swimming pool. This floor also includes a bedroom, a bathroom, and a storage room.

The first floor features two large bedrooms, one with an en suite bathroom and terrace access, and the other with a separate bathroom. Additionally, this floor includes a sauna with an antechamber and direct access to the terrace, offering ultimate relaxation.

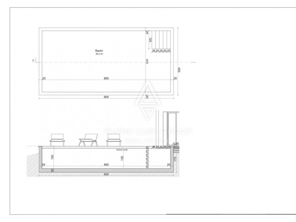
The garden is beautifully landscaped with Mediterranean plants and includes a modern RENOLIT ALKORPLAN TOUCH swimming pool in the color Relax, designed to mimic the natural turquoise hue of a sandy beach. The pool area, complete with a sunbathing zone, is perfect for enjoying hot summer days. The property also provides parking for two vehicles.

Key Features and Specifications:

High-quality wood/aluminum windows and doors by M-SORA.
Underfloor heating in all rooms with a heat pump.
Cooling through built-in fan convectors for optimal efficiency.
Stone and STO façade for a modern exterior finish.
Floor-to-ceiling internal doors (approx. 270 cm).
Italian ceramic tiles and oak parquet flooring in the bedrooms.
Swimming pool with optional heat pump installation.
Video intercom and pre-installed video surveillance and alarm systems.
The villa is conveniently located 11 kilometers from the sea and beaches and just 2 kilometers from shops, schools, and a bus station. Completion is planned for summer 2024, and its proximity to Poreč and Rovinj makes this property a perfect investment for tourist rentals or year-round family living.

About the Location:
Sv. Lovreč is a charming Istrian village known for its tranquility and picturesque surroundings. Its proximity to the vibrant coastal towns of Poreč and Rovinj provides access to stunning beaches, historical landmarks, and exceptional dining experiences. This blend of peaceful living and accessibility makes Sv. Lovreč an attractive destination for both residents and tourists.

Contact Information:
Robert Budimir
License: 196/2019
Phone: +385 52 204 933
Mobile: +385 95 363 1892
E-mail: robert@alphaluxegroup.com

Marijana Budimir
License: 156/2022
Phone: +385 52 204 933
Mobile: +385 95 363 1893
E-mail: marijana@alphaluxegroup.com

Your satisfaction is our mission. We look forward to future collaboration!

ALPHA LUXE GROUP REAL ESTATE

https://alphaluxegroup.com

ID CODE: ALG-2877

Robert Budimir
Agent s licencom
Mob: +385 95 363 1892
Tel: +385 52 204 933
E-mail: robert@alphaluxegroup.com
https://alphaluxegroup.com

Marijana Budimir
Agent s licencom
Mob: +385 95 363 1893
Tel: +385 52 204 933
E-mail: marijana@alphaluxegroup.com
https://alphaluxegroup.com
Features
Type
Single-family detached house
Contract
Sale
Building floors
2
Lift
No
Surface
168 m²
Rooms
5+
Bedrooms
3
Bathrooms
3
Balcony
No
Terrace
No
Garage, car parking
2 parking space
Price information
Price
€ 740,000
Price per m²
4,405 €/m²
Energy efficiency
  • Year of construction

    2022
  • Energy certification

    Not classifiable
Discover every corner of the property
+26
Additional options

Contact the advertiser

Or