Single-family detached house 204 m², new, Vodice

€ 520,000
3
204 m²
2
No
Terrace

Note

Listing updated on 01/27/2026
Description

reference: K2282

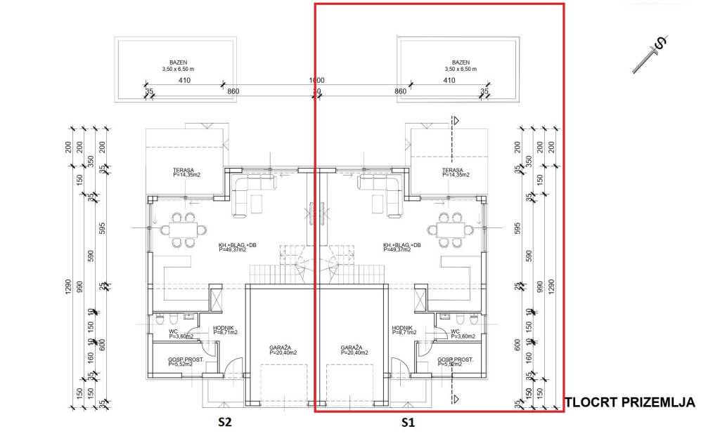
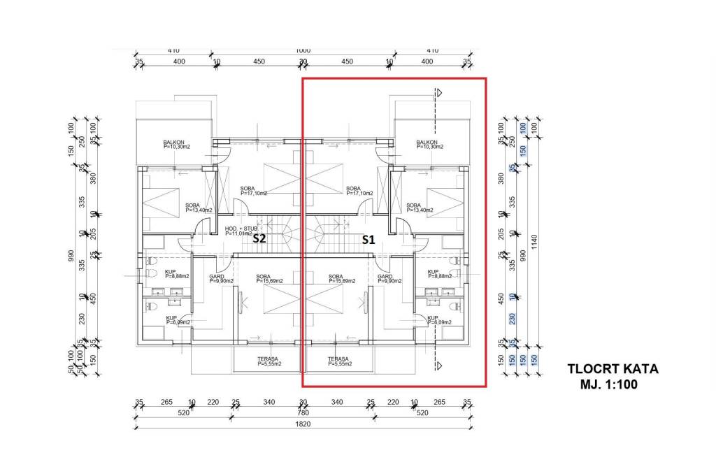
Vodice- prodaje se dvojna kuća s bazenom i krovnom terasom, 550 m od plaže. Kuća katnica moderne arhitekture ukupne neto površine 204,40 m2 ima tri etaže: prizemlje+kat+ 2 kat. Prizemlje se sastoji od: garaža površine 22,40 m2, natkriveni ulaz, hodnik, tehnička soba, wc, kuhinja s blagovaonicom i dnevni boravak open space rasporeda s izlazom na natkrivenu terasu površine 14,35m2. Unutarnjim stubištem se ide na prvu etažu kuće gdje se nalazi hodnik, dvije spavaće sobe s izlazima na zajednički natkriveni balkon površine 10,30m2, zajednička kupaonica te master spavaća soba s garderobom i vlastitom kupaonicom i izlazom na natkrivenu terasu površine 5,55m2. Unutarnjim stubištem se ide na zadnju etažu kuće koja se sastoji od krovne terase površine 92,15m2. Kući pripada okućnica površine 280m2, koja se sastoji od bazena dimenzija 3,50 m * 6.50 m, vrta koji će biti kultiviran mediteranskim biljem i popločanog parkirnog prostora.

Kuća se trenutačno gradi kvalitetnim materijalima i bit će opremljena prema posljednjem standardu gradnje. Planirani rok završetka gradnje je ljeto 2026.Od opreme ističemo:

- protuprovalna vrata
- ALU stolarija i rolete s električnim podizačima
- hidraulično podno grijanje u cijeloj kući,
- električni bojler za toplu vodu (200 l)
- klima uređaji grijanje/hlađenje u dnevnom dijelu i spavaćim sobama
- instalacije za video nadzor
- dimnjak
- staklene ograde na terasama na katu i krovnoj terasi
- bazen površine 22,75 m2.

Kuća je pažljivo projektirana, s odličnim rasporedom prostorija s puno prirodnog svjetla a nalazi se na mirnoj lokaciji u okruženju modernih obiteljskih kuća i vila, 550 m od plaže a 1000 m od centra mjesta, idealna je za miran obiteljski život ali i kao investicija.
Features
Type
Single-family detached house | Medium property class
Contract
Sale
Lift
No
Surface
204 m²
Rooms
3
Bedrooms
3
Bathrooms
2
Balcony
No
Terrace
Yes
Heating
Independent, with radiators, power supply
Air conditioning
Independent
Other features
  • Private and shared garden
  • Security door
  • Pool
Price information
Price
€ 520,000
Price per m²
2,549 €/m²
Energy efficiency

Energy consumption

A

Floorplan
Discover every corner of the property
+28
Additional options

Contact the advertiser

Or