Single-family detached house 233 m², Luka, Poreč

€ 825,000
4
233 m²
3+
No

Note

Listing updated on 03/06/2026
Description

This description has been translated automatically and may not be accurate

reference: 296

Modern house with 4 bedrooms near the sea

House location:
This house is located in a small place near Poreč, 4 km away from the sea and from Poreč. The neighborhood consists of holiday homes and family houses, and the area is generally surrounded by nature but well connected by traffic.

Layout of rooms:
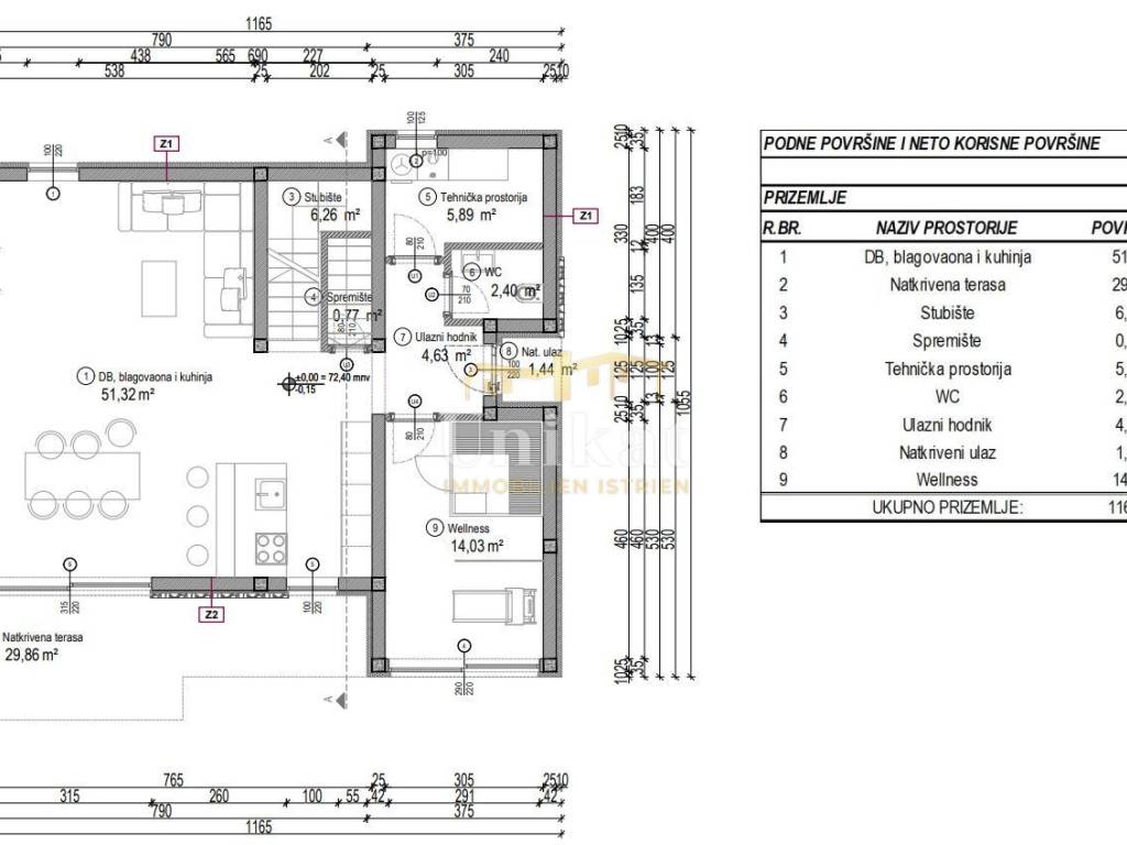
The house has a living area of 233 m2 divided into ground floor, first floor, and attic.
On the ground floor, there is an entrance area, a spacious open living room with kitchen and dining area, a wellness room, a guest toilet, a storage room, and a technical room. The wellness room could be converted into a bedroom. From the living room and wellness room, there is direct access to a large terrace, which is partially covered, leading to the pool and garden.
On the first floor, there are three bedrooms, each with its own bathroom. Each bedroom has direct access to a spacious covered balcony located on two sides of the house, offering views of the pool and surrounding nature.
In the attic, there is a sauna, a bathroom, two storage rooms, and a large roof terrace of 78 m2. From this upper floor, there is a view of the sea.

Equipment:
Underfloor heating is planned throughout the house. Additionally, the house will be equipped with air conditioning units for heating and cooling. The facade insulation consists of 10 cm of polystyrene, the joinery is aluminum and PVC, there are shutters on the windows, heated towel rails in the bathrooms, and the first phase for the sauna has been completed.

Plot:
In front of the house, there is parking for two to three vehicles, and behind the house, there is a pool with a sunbathing area. The rest of the plot is arranged as a garden with lawn and ornamental plants. The entire land is fenced.

Other:
The house is sold turnkey with the pool, without furniture.
Features
Type
Single-family detached house | Medium property class
Contract
Sale
Lift
No
Surface
233 m²
Rooms
4
Bedrooms
4
Bathrooms
3+
Balcony
No
Terrace
No
Heating
Central, with radiators
Distance from the sea
4,000 m
Price information
Price
€ 825,000
Price per m²
3,541 €/m²
Energy efficiency
  • Year of construction

    2023
  • Heating

    Central, with radiators
  • Energy certification

    Waiting for certification
Discover every corner of the property
+11
Additional options

Contact the advertiser

Or