3-room flat Privlaka, Privlaka

€ 450,000
3
90 m²
1
2
No
Terrace

Note

Listing updated on 04/30/2026
Description

This description has been translated automatically and may not be accurate

reference: A-3356

Apartment Privlaka, 67,18m2

PRIVLAKA, two-room apartment S5 for sale on the 1st floor of 91 m2, only 100 m from the sea, NEW BUILDING!

In an exceptional location, only 100 meters from the sea, there is a modern new construction project comprising a total of 6 residential units.
The building consists of a ground floor and two floors, and there are two residential units on each floor.
Apartments on the ground floor have private gardens, perfect for relaxing and being outdoors, while apartments on the second floor have spacious roof terraces.
Each housing unit has two parking spaces, which additionally contributes to the practicality and comfort of living.

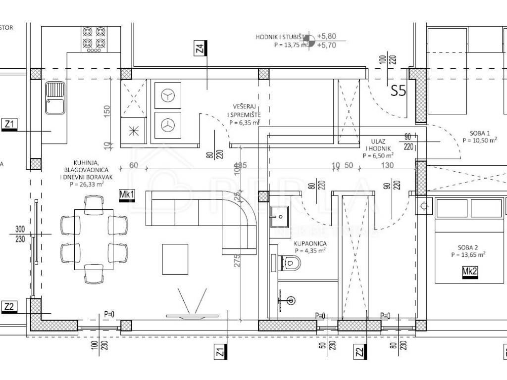
This two-room apartment S5 is located on the 2nd floor, and consists of:
- kitchen, living room and dining room (26.33 m2)
- bedrooms (10.50 m2)
- bedrooms (13.65 m2)
- bathrooms (4.35 m2)
- entrance and corridor (6.50 m2)
- laundry room and storage room (6.35 m2)
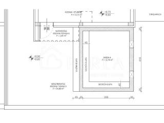
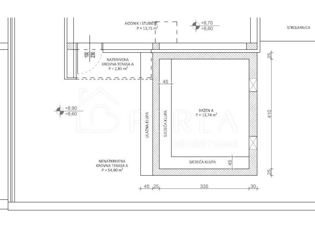
- uncovered terraces (10.70 m2 x 0.2 = 2.68 m2)
- covered roof terrace (2.85 m2 x 0.5 = 1.43 m2)
- uncovered roof terrace (54.90 m2 x 0.25 = 13.73 m2)
- 2 outdoor parking spaces (26 m2 x 0.2 = 5.20 m2)
The total gross area of the apartment is 162.13, while the net area is 90.71 m2.

The following apartments are for sale in the building:
S1 - ground floor, one-room apartment with garden, 67.18 m2 – €240,000.00
S2 - ground floor, one-room apartment with garden, 66.73 m2 – €240,000.00
S3 - 1st floor, two-bedroom apartment, 78.23 m2 – €275,000.00
S4 - 1st floor, two-bedroom apartment, 78.23 m2 – €275,000.00
S5 - 2nd floor, two-room apartment with roof terrace, 90.71 m2 – €450,000.00
S6 - 2nd floor, two-room apartment with roof terrace, 90.71 m2 – €450,000.00

Apartment equipment:
- High quality ceramic tiles and sanitary ware
- Floor heating
- Air conditioning devices - multi split (multiple indoor units)
- Security door
All installed materials, floor and wall coverings are of the highest standards.

Privlaka is a small fishing and tourist town near Zadar and the royal city of Nin.
Clean and clear sea and shallow sandy coves make it ideal for family tourism.
The mild Mediterranean climate also contributes to this, which makes summers warm, with a pleasant whiff of mistral.
Planned completion of construction and occupancy by the summer of 2026.
Ownership neat!

*THE BUYER DOES NOT PAY THE AGENCY COMMISSION!

ID CODE: A-3356

Iva Prtenjača
Mob: +385 (0)91 400 1414
Tel: +385 (0)99 284 1984
E-mail: iva@perlanekretnine.hr
www.perlanekretnine.hr

Alma Cipurković
Mob: +385 (0)91 400 1616
Tel: +385 (0)99 284 1984
E-mail: alma@perlanekretnine.hr
www.perlanekretnine.hr
Features
Type
Apartment
Contract
Sale
Floor
2 floor
Building floors
2
Lift
No
Surface
90 m²
Rooms
3
Bedrooms
2
Bathrooms
1
Balcony
No
Terrace
Yes
Garage, car parking
2 parking space
Heating
Independent, air heating
Price information
Price
€ 450,000
Price per m²
5,000 €/m²
Energy efficiency
  • Year of construction

    2026
  • Heating

    Independent, air heating
  • Energy certification

    Not classifiable
Discover every corner of the property
+29
Additional options

Contact the advertiser

Or