Single-family detached house Svetvinčenat, Svetvinčenat

€ 441,000
4
111 m²
2
No
Terrace

Note

Listing updated on 04/20/2026
Description

This description has been translated automatically and may not be accurate

reference: K1148

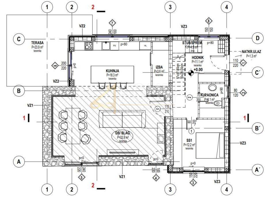
House Svetvinčenat, 111m2

The offer is a new construction - a detached house with a swimming pool in Istria!
Project of a modern house on the ground floor with an open space where there is a living room, a kitchen and a dining room, one bedroom, a hallway and a bathroom and two more bedrooms and a bathroom on the first floor.
The living space is impressive due to five-meter high ceilings, a fireplace and a large sliding wall with access to a 23m2 terrace with an outdoor pool of 28m2.
The house is equipped with quality materials, underfloor heating, heat pumps and air conditioners in all rooms.
Beautiful location surrounded by holiday homes, fifteen kilometers from the sea and the first beaches.

The property can be purchased in the current roh-bau phase, and the advertised price is for "turnkey".

Dear clients, the agency commission is charged in accordance with the General Terms and Conditions.

ID CODE: K1148

Anai Kurelić
Agent s licencom
Mob: +38598724780
Tel: +385914944144, +38551619770
E-mail: anaikurelic@four-nekretnine.hr
www.four-nekretnine.hr
Features
Type
Single-family detached house
Contract
Sale
Lift
No
Surface
111 m²
Rooms
4
Bedrooms
3
Bathrooms
2
Balcony
No
Terrace
Yes
Air conditioning
Independent, cold/hot
Price information
Price
€ 441,000
Price per m²
3,973 €/m²
Energy efficiency
  • Air conditioner

    Independent, cold/hot
  • Energy certification

    Not classifiable
Discover every corner of the property
+9
Additional options

Contact the advertiser

Or