map icon

Apartment new, first floor, Vodice

Vodice
€ 288,300
5+
85 m²
1
1

Note

Listing updated on 02/02/2026
Description

reference: 1157-1

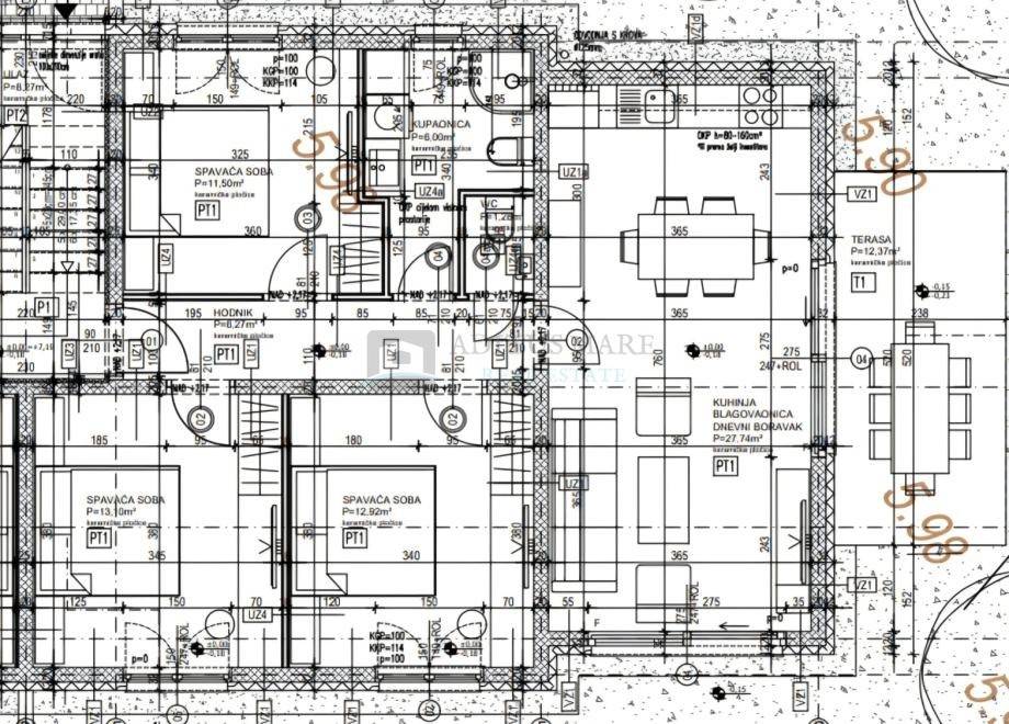
Prodaje se stan A3 na prvom katu novogradnje u mirnom naselju Srima pored Vodica, na izvrsnoj lokaciji udaljenoj 200 metara od plaže i 300 metara od centra naselja. Zgrada se sastoji od četiri stambene jedinice, što osigurava privatnost i ugodan ambijent.
Stan obuhvaća ulazni prostor od 6,27 m, tri spavaće sobe veličina 12,92 m, 12,92 m i 11,50 m, kupaonicu od 5,89 m te zaseban WC od 1,37 m. Dnevni boravak, blagovaonica i kuhinja čine otvoreni prostor od 27,74 m, a iz stana se izlazi na balkon površine 10 m.
Uz stan dolazi i parkirno mjesto od 12,5 m, što dodatno doprinosi praktičnosti i udobnosti života.

Planirani završetak gradnje predviđen je za lipanj 2026. godine.
Za sve dodatne informacije, provjeru dostupnosti ostalih stanova ili dogovor oko razgledavanja slobodno se javite!
Interni ID agencije: 1157
Ana Ivanda
Agent s licencom
+385 99 33 84 900
info@am-realestate.hr
If you want to know more, you can talk to Ana Ivanda.
Features
Type
Apartment
Contract
Sale
Floor
1 floor
Surface
85 m²
Rooms
5+
Bedrooms
3
Bathrooms
1
Price information
Price
€ 288,300
Price per m²
3,392 €/m²
Energy efficiency
  • Year of construction

    2025
  • Condition

    New / Under construction
  • Energy certification

    Not classifiable
Discover every corner of the property
+14
Additional options

Contact the advertiser

Or