map icon

4-room flat new, ground floor, Vodice

Vodice
€ 217,112
4
78 m²
1
G

Note

Listing updated on 02/02/2026
Description

reference: 1115-1

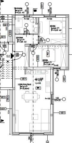
U ponudi je stan S2 u prizemlju nove, moderno projektirane stambene zgrade smještene u mirnom i uređenom dijelu Vodica. Lokacija je posebno pogodna za obiteljski život u neposrednoj je blizini škole i svih ključnih sadržaja, dok je centar grada udaljen svega 1300 m.
Opis stana i raspored
Stan ima ukupnu neto površinu 67,85 m, a sastoji se od:
Ulaznog hodnika 7,65 m
Kupaonice 5,22 m
Spavaće sobe 1 10,40 m
Spavaće sobe 2 11,66 m
Prostranog dnevnog boravka s kuhinjom i blagovaonicom 32,92 m
Pripadak stanu S2 je terasa površine 18m2x0,20=3,60m2 te dvorište 35,90x0,10=3,59m2 što daje ukupnu površinu od 77,54m2.
Raspored je funkcionalan s naglaskom na prostran dnevni prostor, što stan čini vrlo ugodnim za svakodnevni život. Velike staklene površine osiguravaju obilje prirodnog svjetla te osjećaj otvorenosti i komfora.

Od opreme izdvajamo:
Podno grijanje na struju u dnevnom boravku i kupaoni, 3 jedinice klime (grijanje/hlađenje), troslojna stakla, el. podizači roleta, komarnici na svim zatvorima, fasada stiropor 10cm.

Lokacija i pogodnosti
Mirno okruženje, prometna pristupačnost i blizina svih potrebnih sadržaja čine ovaj stan izvrsnim izborom za obitelj, ali i sigurnom investicijom s odličnim potencijalom za dugoročni ili turistički najam.
Dostupnost više stanova u zgradi
U istoj stambenoj zgradi dostupna su još tri stambene jedinice, što pruža mogućnost odabira idealne jedinice ili kupnje više stanova u svrhu ulaganja.
Mogućnost plaćanja u fazama gradnje.
Za dodatne informacije ili dogovor oko razgleda slobodno se javite.
Interni ID agencije: 1115
Ana Ivanda
Agent s licencom
+385 99 33 84 900
info@am-realestate.hr
Jelena Đukić
Agent s licencom
+385 98 983 2830
info@am-realestate.hr
.
If you want to know more, you can talk to Jelena Đukić.
Features
Type
Apartment
Contract
Sale
Floor
Ground floor
Surface
78 m²
Rooms
4
Bedrooms
2
Bathrooms
1
Price information
Price
€ 217,112
Price per m²
2,783 €/m²
Energy efficiency
  • Year of construction

    2025
  • Condition

    New / Under construction
  • Energy certification

    Not classifiable
Discover every corner of the property
+5
Additional options

Contact the advertiser

Or