2-room flat new, Vodice

€ 345,425
2
84 m²
1
Yes
Terrace

Note

Listing updated on 02/20/2026
Description

This description has been translated automatically and may not be accurate

reference: S2292

Vodice - Luxury Apartment S2 on the ground floor with garden, sea view

VODICE – S2 GROUND FLOOR – MODERN NEW BUILD WITH TERRACE, SEA VIEW – 84.25 m2

Apartment S2 on the ground floor of a modern residential building with an elevator is for sale, located in a quiet and attractive location in Vodice, only 700 m from the beach and 750 m from the town center.

The building features a contemporary design and has a total of 10 apartments (basement + ground floor + 1st floor + 2nd floor) and is being constructed with quality materials according to the latest building standards. The planned start of construction is early 2025, with completion in summer 2026.

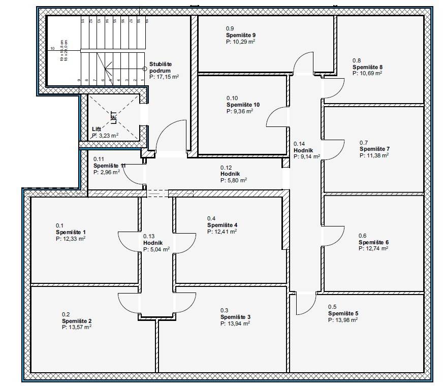
APARTMENT S2 – 84.25 m2

The apartment consists of:

- entrance


- hallway


- toilet / laundry room


- bathroom


- two bedrooms


- kitchen with dining area and open-plan living room


- covered terrace of 17.41 m2



The apartment includes:

- storage room in the building basement


- one parking space


- option to purchase an additional parking space (€7,500)



Ground floor apartments have a part of the garden, providing additional privacy and comfort.

EQUIPMENT AND STANDARDS:

- styrofoam facade insulation


- anthracite-colored PVC joinery


- electric roller shutters


- stone floor coverings


- modern bathroom fixtures


- underfloor heating


- inverter air conditioning units in all rooms and living room


- elevator in the building



PRICE: €345,425.00 (VAT included)
The buyer does not pay real estate transfer tax.

ALL AVAILABLE APARTMENTS IN THE BUILDING:

GROUND FLOOR:

Apartment S1 with a total area of 74.78 m2 consists of entrance, toilet/laundry room, hallway, bathroom, two bedrooms, kitchen with dining area and living room, and a partially covered terrace of 19.71 m2. The apartment includes a corresponding part of the garden, storage room in the basement, and one parking space.
PRICE: €291,642.00 (VAT included in the apartment price).

Apartment S2 with a total area of 84.25 m2 consists of entrance area, toilet/laundry room, hallway, bathroom, two bedrooms, kitchen with dining area and living room, and a covered terrace of 17.41 m2. The apartment includes a corresponding part of the garden, storage room in the basement, and one parking space.
PRICE: €345,425.00 (VAT included in the apartment price).

Apartment S3 with a total area of 84.20 m2 consists of entrance, toilet/laundry room, bathroom, hallway, two bedrooms, kitchen with dining area and living room, and a covered terrace of 15.91 m2. The apartment includes a storage room in the basement and one parking space.
PRICE: €336,800.00 (VAT included in the apartment price).

Apartment S4 with a total area of 83.73 m2 consists of entrance, hallway, toilet/laundry room, bathroom, two bedrooms, kitchen with dining area and living room, and a covered terrace of 16.73 m2. The apartment includes a storage room in the basement and one parking space.
PRICE: €334,920.00 (VAT included in the apartment price).

1st FLOOR:

Apartment S5 on the 1st floor with a total area of 120.89 m2 consists of entrance, hallway, toilet/laundry room, two bedrooms, bathroom 1, bedroom with en-suite bathroom 2, kitchen with dining area and living room, and a covered terrace of 16.90 m2. The apartment includes a storage room in the basement and one covered parking space.
PRICE: €507,738.00 (VAT included in the apartment price).

Apartment S6 – SOLD

Apartment S7 on the 1st floor with a total area of 125.48 m2 consists of entrance, hallway, laundry room, bathroom 1, two bedrooms, bedroom with en-suite bathroom 2, kitchen with dining area and living room, and a covered terrace of 21.52 m2. The apartment includes a storage room in the basement and one parking space.
PRICE: €527,016.00 (VAT included in the apartment price).

2nd FLOOR:

Apartment S8 - SOLD

Apartment S9 on the 2nd floor with a total area of 93.76 m2 consists of entrance area, bathroom 1, storage room, laundry room, bathroom 2, hallway, two bedrooms, kitchen with dining area and living room, and a covered terrace of 12.55 m2. The apartment includes a storage room in the basement and one parking space.
PRICE: €421,920.00 (VAT included in the apartment price).

Apartment S10 on the 2nd floor with a total area of 125.50 m2 consists of entrance, hallway, laundry room, bathroom 1, two bedrooms, bedroom with en-suite bathroom 2, kitchen with dining area and living room, and a covered terrace of 17.20 m2. The apartment includes a storage room in the basement and one parking space.
PRICE: €564,750.00 (VAT included in the apartment price).
Features
Type
Apartment | Medium property class
Contract
Sale
Building floors
2
Lift
Yes
Surface
84 m²
Rooms
2
Bedrooms
2
Bathrooms
1
Balcony
No
Terrace
Yes
Heating
Independent, floor heating
Air conditioning
Independent
View
Sea
Other features
  • Security door
Price information
Price
€ 345,425
Price per m²
4,112 €/m²
Energy efficiency
  • Year of construction

    2026
  • Condition

    New / Under construction
  • Heating

    Independent, floor heating
  • Air conditioner

    Independent
Floorplan
Discover every corner of the property
+10
Additional options

Contact the advertiser

Or