map icon

Apartment new, fourth floor, Centar, Luka, Finida, Umag

Umag
€ 232,251
5
61 m²
1
4

Note

Listing updated on 03/13/2026
Description

reference: 4209-1

UMAG - projekt novogradnje
Planirana je izgradnja četiri višestambene građevine sa ukupno 192 stana. Svaki od 4 odvojena volumena sadrži vertikalnu jezgru, a svaka jezgra stubište i dizalo koje povezuje podzemne i nadzemne etaže. Strukturu stanova u projektu čine po pet stanova na svakoj etaži, stanovi su sobnosti od2-sobnih do 5-ero sobnih, od prizemlja do osmog kata (stanovi se po vertikali ponavljaju) svakog pojedinog volumena (A, B, C i D), dok se na devetom katu nalaze po tri stana u svakom nadzemnom volumenu.
Planirani rok završetka/useljenja 30.06.2028.
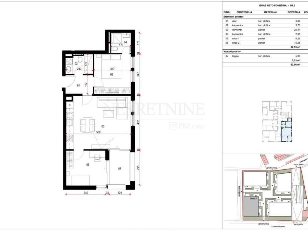
Površina stanova je u rasponu od 37,63m do 130,60m
Cijena stanova, ovisno o etaži i orijentaciji, je u rasponu od 3.490,00 /m do 4.490,00 /m
Uz svaki stan je vezano garažno parkirališno mjesto, cijena garažnog parkirališnog mjesta je u rasponu od 2.990,00/m do 3.190,00 /m (prema obračunskoj površini, koef. 0,5).

Stan 61,28 m2 (3.790,00 /m2) - 232.251,20
GPM 6,84 m2 (2.990,00 /m2) - 20.451,60
Ukupno
252.702,80

Za prvih 50 kupaca, koji najkasnije do 30.04.2026. uplate kaparu, odobrava se popust od 5% na ukupnu kupoprodajnu cijenu.
Po potpisu Ugovora plaća se 20% kupoprodajne cijene kao kapara ostatak kupoprodajne cijene plaća se po završetku izgradnje.
Ovisno o načinu plaćanja moguće je ostvariti dodatan popust do 8% na uplate izvršene iznad iznosa kapare.

Features
Type
Apartment
Contract
Sale
Floor
4 floor
Surface
61 m²
Rooms
5
Bedrooms
2
Bathrooms
1
Price information
Price
€ 232,251
Price per m²
3,807 €/m²
Energy efficiency
  • Year of construction

    2028
  • Condition

    New / Under construction
  • Energy certification

    Not classifiable
Discover every corner of the property
+6
Additional options

Contact the advertiser

Or