4-room flat new, second floor, Ližnjan

€ 862,000
4
233 m²
2
2
No

Note

Listing updated on 03/27/2026
Description

This description has been translated automatically and may not be accurate

reference: I30240

Istra, Ližnjan: A two-story penthouse with a swimming pool is for sale in a residential building with a total of three floors, located in a quiet area near Ližnjan and Medulin.

The penthouse with a total net area of 233.70 m offers an extraordinary layout and high-quality construction, ideal for a family or investment. The space is functionally organized and includes the 2nd and 3rd floor.
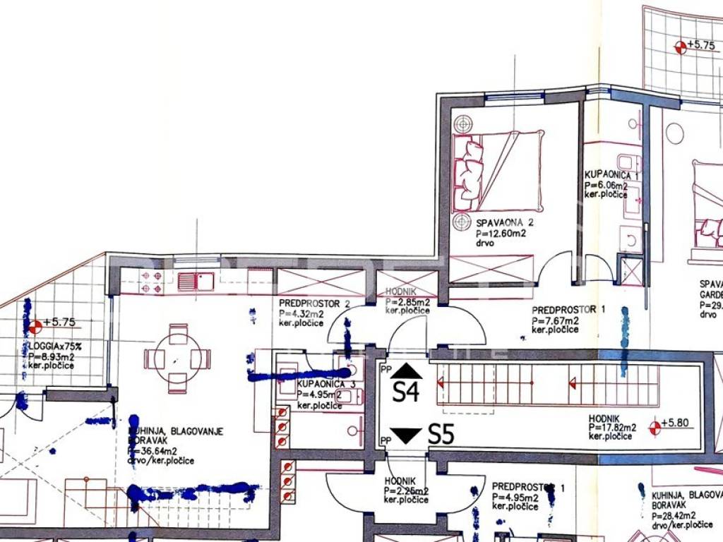
Layout of the 2nd floor:
- Hallway: 2.85 m2
- Entrance hall 1: 7.67 m2
- Bedroom 1: 29.13 m2
- Bathroom 1: 6.06 m2
- Bedroom 2: 12.6 m2
- Entrance hall 2: 4.32 m2
- Bathroom 2: 4.95 m2
- Living room and kitchen: 23.43 m2
- Loggia: 8.93 m2 (6.69 m2 net)
- Covered balcony: 9.2 m2 (4.6 m2 net)

Layout of the 3rd floor:
- Gallery: 85.97 m2
- Uncovered terrace: 133.82 m2 (66.91 m2 net)

From the 3rd floor, there is a panoramic view of the surrounding towns, nature and the sea, and offers the possibility of enjoying the pool at night.
The penthouse also stands out for its proximity to the sea (3.5 km) and high-quality construction. PVC and aluminum carpentry were used, ensuring durability and energy efficiency.

Distances:
- Shop: 200 m
- Church: 250 m
- Restaurant: 100 m
- Kindergarten: 400 m
- Sea: 3.5 km
- Motorway: 8.5 km
- Airport: 10 km

For anyone interested in sightseeing or additional information, feel free to contact us.

About the municipality of Ližnjan and Pula:
Liznjan is a quiet municipality in the southern part of Istria, known for its preserved nature and picturesque beaches. This area offers a rich history, peaceful life and excellent connections to major cities. Pula, a few kilometers away, is the largest Istrian city with a rich cultural heritage and attractions such as the Arena. Pula offers all urban amenities, while Liznjan offers an ideal balance of nature and privacy.
Features
Type
Apartment
Contract
Sale
Floor
2 floor
Lift
No
Surface
233 m²
Rooms
4
Bedrooms
3
Bathrooms
2
Furnished
No
Heating
Independent, power supply
Air conditioning
Cold/hot
Other features
  • Pool
Price information
Price
€ 862,000
Price per m²
3,700 €/m²
Energy efficiency
  • Year of construction

    2024
  • Condition

    New / Under construction
  • Heating

    Independent, power supply
  • Air conditioner

    Cold/hot
Additional options

Contact the advertiser

Or