3-room flat new, third floor, Delnice

€ 243,180
3
69 m²
1
3
Yes

Note

Listing updated on 03/25/2026
Description

This description has been translated automatically and may not be accurate

reference: I33943

Apartment, NEW BUILDING, sale Gorski Kotar, Delnice, center, Lujzijana street, 3 rooms, 69.48 m2

In this high-quality project, modern architecture with an emphasized mountain character, 51 apartments will be located with planned occupancy in the autumn of 2027.

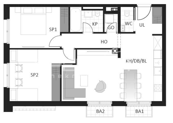
The spacious two-bedroom apartment consists of 2 bedrooms, a bathroom, a toilet, a hallway, a living room with a kitchen and dining area, and 2 balconies.

Technical description and equipment:
- Reinforced concrete structure
- ETICS facade thickness of 15 cm
- PVC joinery with electric roller shutter lifting
- Anti-burglary and fireproof entrance doors
- Three-layer parquet of top quality
- Class I ceramic tiles in sanitary rooms
- Bathroom equipment and sanitary ware, Walk-in shower
- Underfloor heating in all rooms with digital thermostats
- Heating and cooling via fan coil units in all main rooms
- Low-noise fans in sanitary rooms
- Video intercom

The KotarOne project is located in the very center of Delnice, on Lujzinskoj street, and is surrounded by all necessary amenities for living within a few minutes' walk. It is just a few minutes' drive from the Rijeka Zagreb highway, and it takes 1 hour to drive to Rijeka or Zagreb.
Features
Type
Apartment
Contract
Sale
Floor
3 floor
Lift
Yes
Surface
69 m²
Rooms
3
Bedrooms
2
Bathrooms
1
Furnished
No
Garage, car parking
1 parking space
Heating
Independent, power supply
Air conditioning
Cold/hot
Price information
Price
€ 243,180
Price per m²
3,524 €/m²
Energy efficiency

Energy consumption

B

Discover every corner of the property
+3
Additional options

Contact the advertiser

Or