Single-family detached house 117 m², new, Centar, Luka, Finida, Umag

€ 390,000
4
117 m²
3
Balcony
Cellar

Note

Listing updated on 02/16/2026
Description

This description has been translated automatically and may not be accurate

reference: 584

Modern terraced house with sea view near Umag

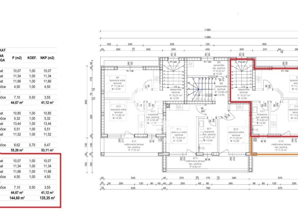
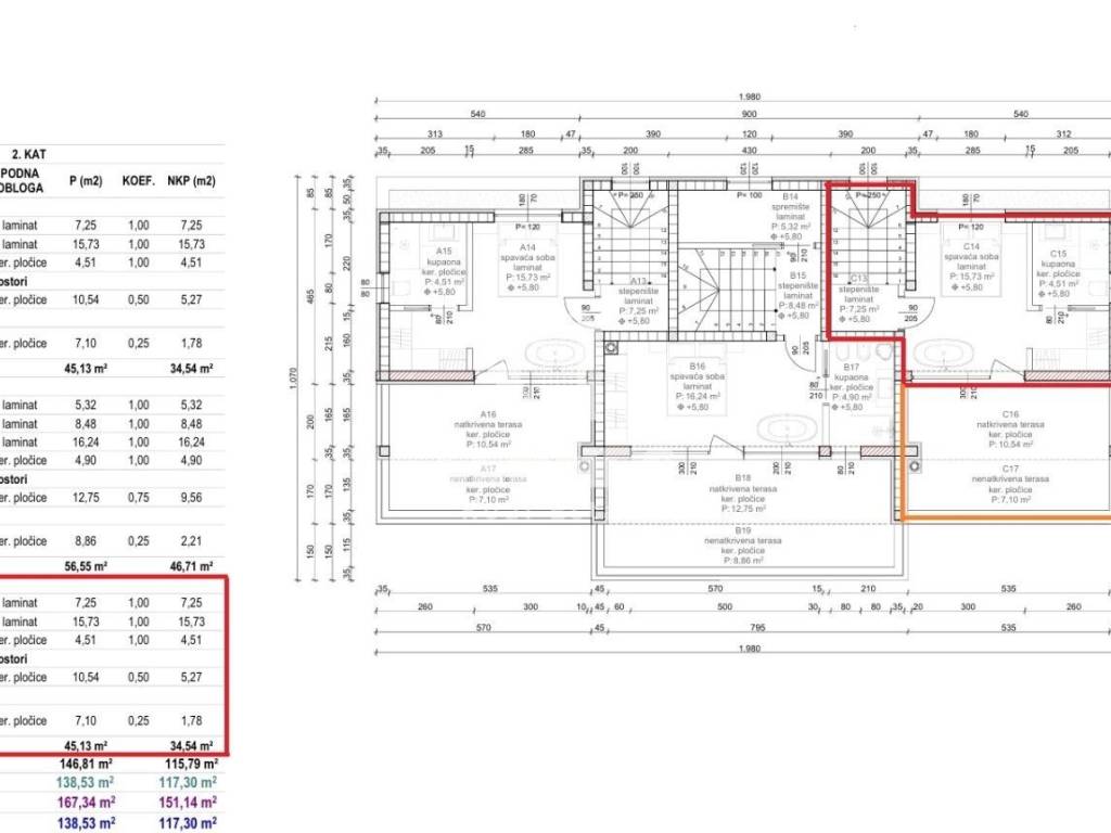
Modern terraced house for sale (unit C) near Umag. The net usable area of the house is 117.38 m2, while the area of the garden is about 200 m2. On the ground floor there is a toilet, a pantry, a kitchen with a dining room and a living room with access to a covered terrace. On the first floor, there are 2 bedrooms, one of which has access to the covered terrace and a bathroom. On the second floor there is a bedroom with its own bathroom and a large terrace with a view of the sea.

A predisposition for a heat pump is provided for heating, while cooling is provided by an air conditioning unit.

The facade will be energy-efficient (10 cm styrofoam), while the joinery will be triple-glazed. The start of construction is planned for the end of 2025. The house is located in a peaceful environment and is ideal for living as well as for renting for tourist purposes.

The distance of the house from the sea and the town of Umag is 1.5 km.

www.leones-realestate.hr
Features
Type
Single-family detached house
Contract
Sale
Floor
1
Building floors
3
Surface
117 m² | commercial 317 m²
Rooms
4
Bedrooms
3
Bathrooms
3
Furnished
No
Balcony
Yes
Garage, car parking
1 parking space
Heating
Independent, floor heating, power supply
Air conditioning
Cold/hot
Surface detail

Residential

Floor
1
Surface
117.0 m²
Coefficient
100%
Surface type
Main
Commercial area
117.0 m²

Land

Floor
Ground floor
Surface
200.0 m²
Coefficient
100%
Surface type
Accessory
Commercial area
200.0 m²
Price information
Price
€ 390,000
Price per m²
1,230 €/m²
Energy efficiency

Energy consumption

A

Discover every corner of the property
+7
Additional options

Contact the advertiser

Or