4-room flat new, first floor, Centar, Luka, Finida, Umag

€ 356,000
4
82 m²
2
1
Balcony
Cellar

Note

Listing updated on 05/02/2026
Description

This description has been translated automatically and may not be accurate

reference: 643

Duplex apartment in Lovrečica only 300 meters from the sea

A quality duplex apartment with two bedrooms is for sale in an attractive location only 200 meters from the sea.

It has 61.20m2 of net usable area + 8.20m2 of covered terrace, 15.70m2 of uncovered terrace and a 3.05m2 loggia, while the remaining area belongs to the storage room (7m2) and the apartment has one covered parking space.

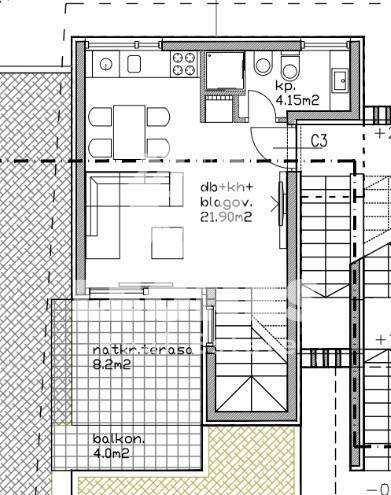
This quality apartment consists of two floors. On the first floor there is an open space living room with kitchen and dining room as well as a bathroom and a large terrace and balcony.

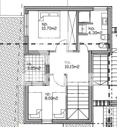
On the second floor there are two bedrooms, a bathroom and a loggia.

It is heated by air conditioning and underfloor heating in the bathroom.

Quality materials were used in the construction, rock wool insulation, security doors, aluminum windows with electric shutters and mosquito nets.

Quality materials and proximity to the sea are something that will surely delight you!

www.leones-realestate.hr
Features
Type
Apartment
Contract
Sale
Floor
1 floor
Building floors
2
Surface
82 m²
Rooms
4
Bedrooms
2
Bathrooms
2
Furnished
No
Balcony
Yes
Garage, car parking
1 parking space
Heating
Independent, floor heating, power supply
Air conditioning
Cold/hot
Other features
  • Security door
Price information
Price
€ 356,000
Price per m²
4,341 €/m²
Energy efficiency

Energy consumption

A

Discover every corner of the property
+24
Additional options

Contact the advertiser

Or