3-room flat new, second floor, Monte Magno - Valdebek, Pula

€ 378,000
3
124 m²
2
2
Balcony

Note

Listing updated on 05/11/2026
Description

This description has been translated automatically and may not be accurate

reference: 8390

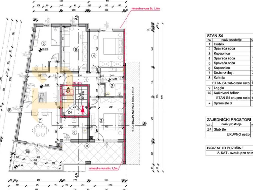
New construction Valdebek: apartment with 3 rooms and a large balcony

For sale is a modern apartment in a new building located on the second floor in a sought-after part of Valdebek. The apartment consists of three spacious bedrooms and two modernly designed bathrooms, while the open concept of the kitchen, dining room, and living room provides a bright and airy space for everyday living.

From the living area and the main bedroom, there is access to a large balcony, ideal for relaxation, morning coffee, or socializing with friends. The apartment comes with two parking spaces, and there is also the possibility to purchase a 22 m² garage for 35,000 euros in exchange for one parking space.

The new building was constructed according to high construction standards, with an emphasis on material quality and living comfort. The location offers a peaceful environment, while being close to all necessary amenities - schools, shops, public transport, and just a few minutes drive to the center of Pula and the sea.

This spacious apartment on the second floor in Valdebek is an ideal choice for families or investors looking for a functional and modern home with a large balcony in an attractive location.

Agency commission is 3% + VAT of the achieved sale price.

If you want to know more, you can talk to Paula Vujica.
Features
Type
Apartment
Contract
Sale
Floor
2
Building floors
2
Surface
124 m²
Rooms
3
Bedrooms
3
Bathrooms
2
Balcony
Yes
Garage, car parking
1 parking space
Heating
Independent, air heating
Air conditioning
Independent, cold/hot
Surface detail

Other

Floor
2
Surface
124.0 m²
Coefficient
100%
Surface type
Main
Commercial area
124.0 m²
Price information
Price
€ 378,000
Price per m²
3,048 €/m²
Energy efficiency
  • Year of construction

    2026
  • Condition

    New / Under construction
  • Heating

    Independent, air heating
  • Air conditioner

    Independent, cold/hot
Discover every corner of the property
+4
Additional options

Contact the advertiser

Or