Apartment new, second floor, Centar, Luka, Finida, Umag

€ 277,000
5
57 m²
1
2
Cellar

Note

Listing updated on 02/09/2026
Description

This description has been translated automatically and may not be accurate

reference: 2649

We offer an apartment on the 2nd floor, which is currently being built in a small residential building with only four units.
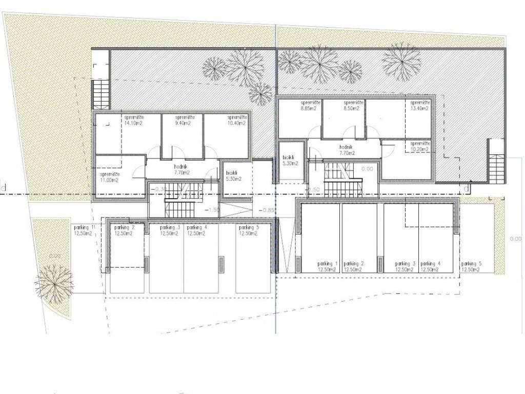
The total living area is 57.40 m2, and the apartment consists of an entrance hall, a fully equipped bathroom, two bedrooms, a kitchen with a dining room and a bright living room with access to the terrace. Also, the apartment includes a storage room of 8 m2 on the ground floor of the building and a covered parking space.

For optimal temperature throughout the year, air conditioning units are installed in each room, while floor heating is installed in the bathroom. The apartment is also equipped with electric blinds.

This exceptional apartment is located in a great location, just 300 meters from the beautiful beach. Novigrad is only 8 kilometers away, and Umag is 5 kilometers away. Poreč is also easily accessible, only 23 kilometers away.

This property provides the perfect opportunity for those looking for a quiet lifestyle by the beach or those looking to earn income through a seasonal rental.
Features
Type
Apartment
Contract
Sale
Floor
2 floor
Surface
57 m²
Rooms
5
Bedrooms
2
Bathrooms
1
Furnished
No
Heating
Independent, floor heating, power supply
Air conditioning
Cold/hot
Price information
Price
€ 277,000
Price per m²
4,860 €/m²
Energy efficiency

Energy consumption

A

Discover every corner of the property
+17
Additional options

Contact the advertiser

Or