Apartment new, first floor, Centar, Luka, Finida, Umag

€ 338,000
5
54 m²
1
1
Cellar

Note

Listing updated on 05/03/2026
Description

This description has been translated automatically and may not be accurate

reference: 2771

For sale is an apartment with a sea view located in an attractive location, only 400m from beautiful beaches.
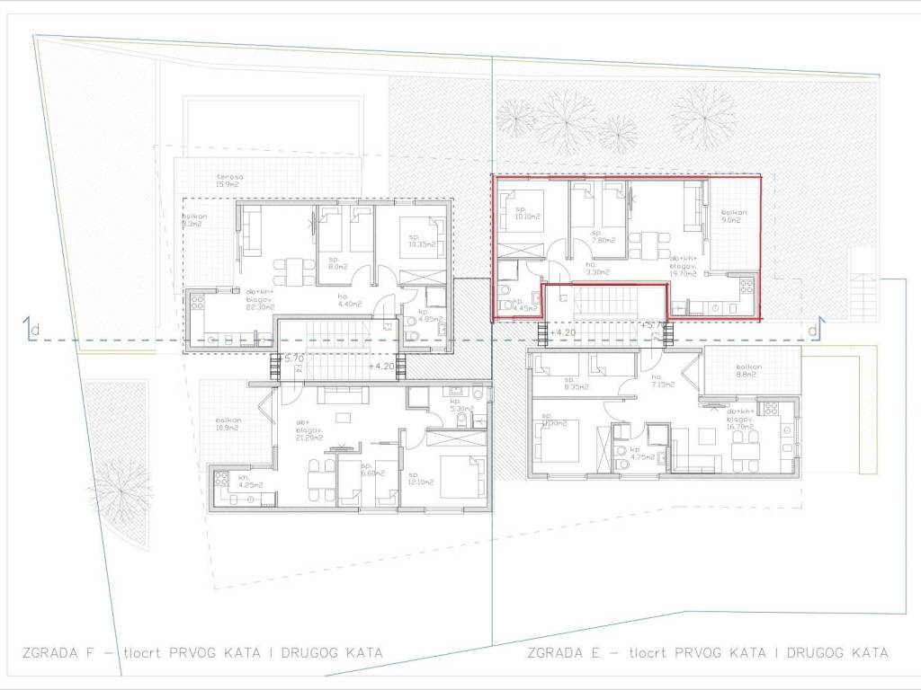
This fully equipped and practical apartment covers an area of 54.35m2 and is located in a small residential building with a total of 4 apartments. The specificity of this intelligently designed building with 4 apartments is that each apartment is provided with privacy, since each apartment is located on its own separate floor.

This apartment includes an entrance hall, two bedrooms, a bathroom and a kitchen that is fully equipped with all appliances, as well as a living room. Large glass walls allow plenty of light and water to the spacious covered terrace of 9m2.

Air conditioning ensures optimal temperature in all areas, while electric underfloor heating provides additional warmth in the bathroom. This apartment also includes a large basement storage space, as well as a covered parking space.

Due to its ideal location, conveniently located between Novigrad and Umag, this apartment is an exceptional investment for summer tourism, but also for personal vacations.
Features
Type
Apartment
Contract
Sale
Floor
1 floor
Surface
54 m²
Rooms
5
Bedrooms
2
Bathrooms
1
Furnished
No
Garage, car parking
1 parking space
Heating
Independent, floor heating, power supply
Air conditioning
Cold/hot
Other features
  • Security door
Price information
Price
€ 338,000
Price per m²
6,259 €/m²
Energy efficiency

Energy consumption

A+

Discover every corner of the property
+25
Additional options

Contact the advertiser

Or